Sold33 May Street, Kew
Victorian with Stunning Contemporary Styling
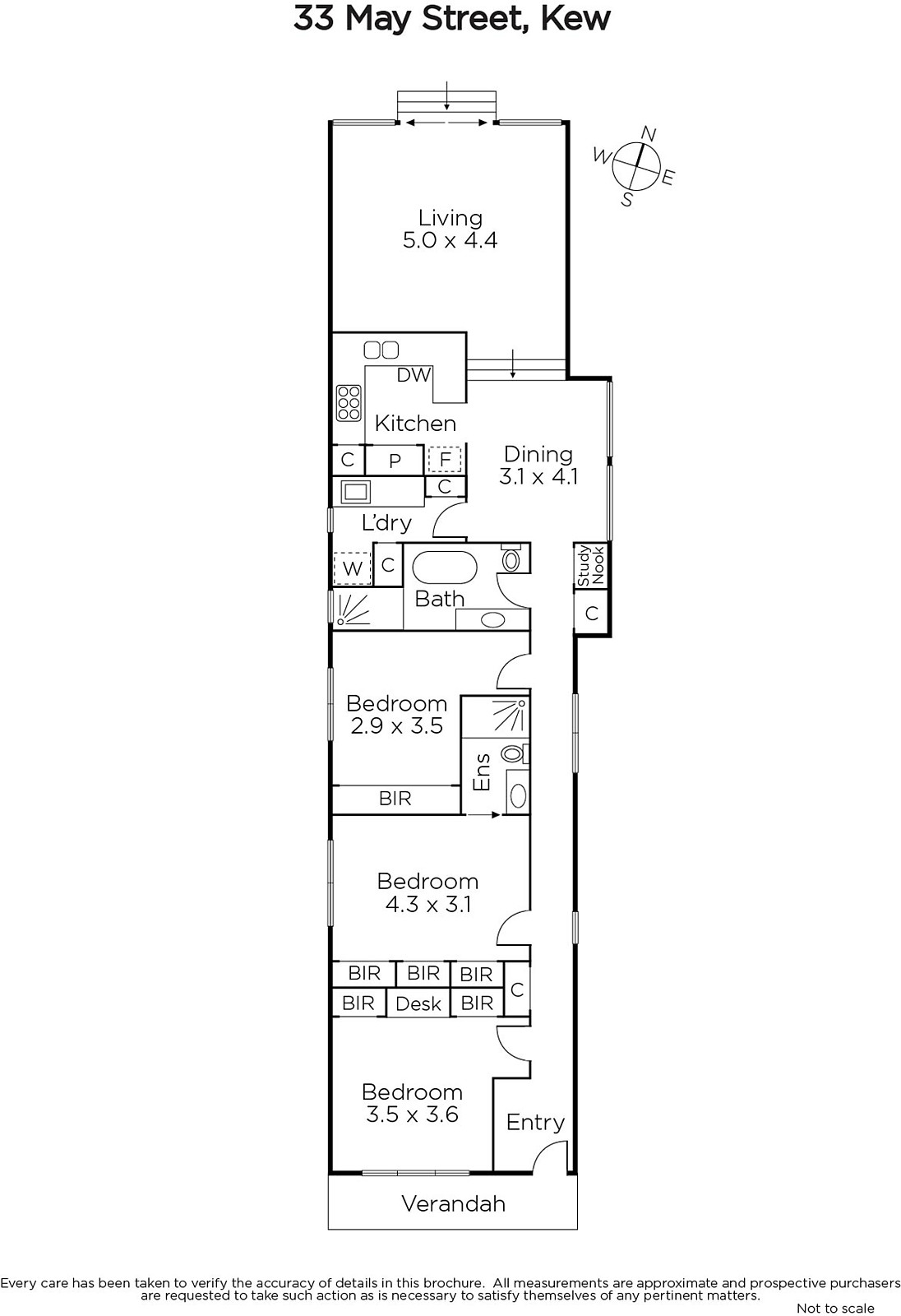
Beyond the attractive rendered façade of this freestanding Victorian cottage c1900, featuring a bullnose verandah trimmed with iron lacework, lies a stunning contemporary interior; imaginatively transformed with attention to detail and designer styling where form meets function.
With Tasmanian oak floors throughout, a long entrance hall, with built-in mudroom cupboard, flanks three bedrooms with BIRs, main with pristine floor-heated ensuite, moving through to a sparkling family bathroom and laundry and a hidden computer station. Flowing to a spectacular living precinct with dining room, sleek kitchen with stone bench tops and prestige Smeg and Asko appliances, overlooking a living room with floor-to-ceiling double glazed glass wall with retracting doors and an electric external louvred blind. Opening to a deck with gas mains barbeque delivering a tranquil oasis for year round relaxing in complete privacy. Other features include video intercom, alarm, ducted heating and zoned refrigerated air-conditioning, under house tank and watering system plus remote roller door off-street parking from rear lane if desired.
This chic Victorian is complemented by a quiet period streetscape lined with Silver Birch trees in the heart of the Kew private school precinct; close to Kew Junction and Glenferrie Road shops, cafes and restaurants with transport options close by - offering a superb lifestyle opportunity for young professionals, families or retirees with an eye to capital gains prospects in an ultra-convenient location.
Enquire about this property
Request Appraisal
Welcome to Kew 3101
Median House Price
$2,666,500
2 Bedrooms
$1,575,000
3 Bedrooms
$2,173,500
4 Bedrooms
$2,926,250
5 Bedrooms+
$4,580,000
Kew, positioned just 5 kilometres east of Melbourne's CBD, is renowned for its sophistication and elegance.















