Sold33 Grant Street, Malvern East
Spectacular Luxury with Court and Pool
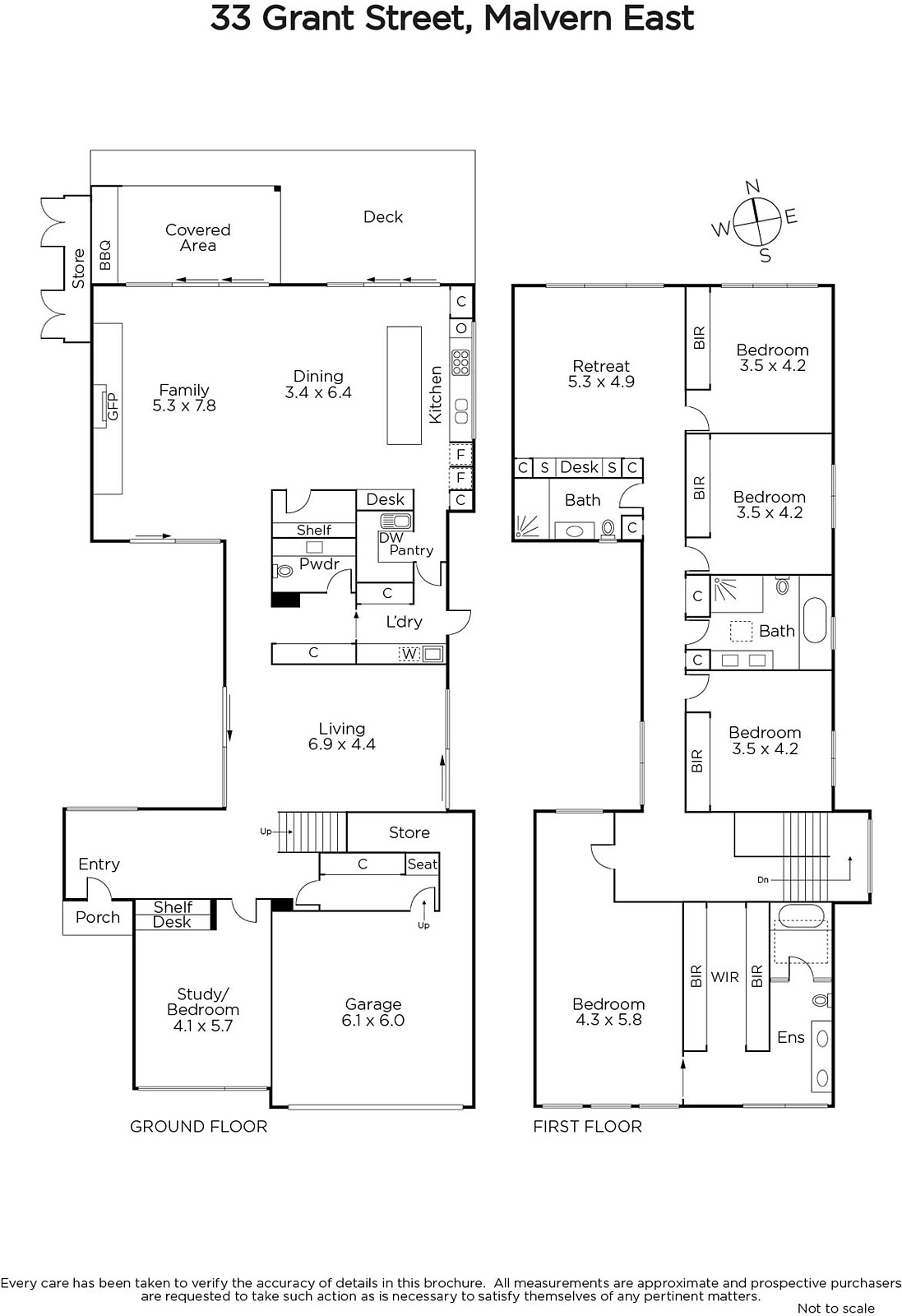
Designed and constructed with signature attention to detail by Canny, this 3 year old contemporary residence delivers a luxuriously spacious, impeccably stylish and eminently functional family domain within spectacular resort-style north-facing gardens with north-south tennis court and pool.
An imposing pivot door reveals a stunning interior defined by ultra high ceilings, vast expanses of glass and wide oak floors. A generous study/home office or 5th bedroom and beautiful sitting room enjoy garden outlooks. Breathtaking in scale, the living and dining room with a gas pebble fire incorporates a state of the art kitchen boasting stone benches, Neff appliances, integrated Liebherr fridge/freezer and butler's pantry. Huge glass sliders open to a fabulous covered BBQ terrace overlooking the picturesque north-facing private garden with heated pool and mod-grass tennis court. The gorgeous main bedroom with designer en-suite and walk in robe sets a benchmark for luxury that is met by three additional double bedrooms with built in robes, two stylish bathrooms and a retreat.
Comprehensively appointed with alarm, video intercom, heating/cooling, ducted vacuum, wine-room, powder-room, laundry, mud room, auto gates, irrigation and internally accessed double garage. Land size: 1384sqm approx.
Enquire about this property
Request Appraisal
Welcome to Malvern East 3145
Median House Price
$2,122,500
2 Bedrooms
$1,489,000
3 Bedrooms
$1,842,000
4 Bedrooms
$2,482,500
5 Bedrooms+
$2,977,500
Situated 12 kilometres southeast of Melbourne’s bustling CBD, Malvern East is a suburb renowned for its blend of family-friendly charm and cosmopolitan living.


















