Sold32A Wattletree Road, Armadale
Expressions of Interest Close 16th April 2pm
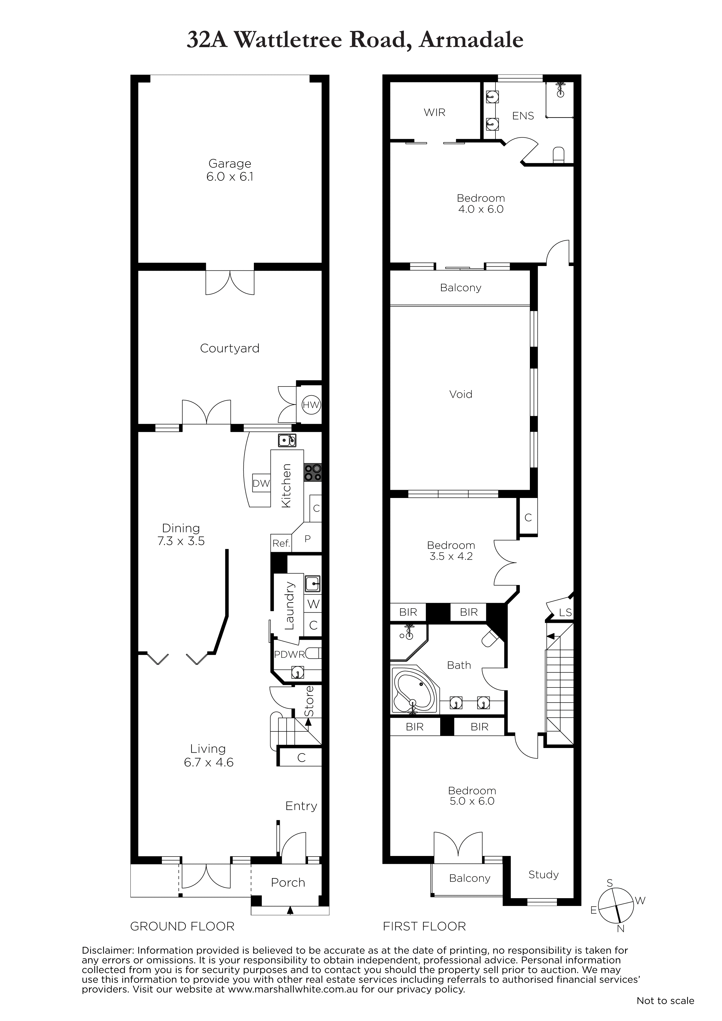
Spacious Living with Unmatched Convenience
Situated in an ideally convenient location, this impressively spacious and secure contemporary residence offers timeless charm and impeccably presented 30-square dimensions, providing sun-drenched and versatile family living. Just a short stroll away are Armadale station, city trams, schools, Armadale Reserve and Malvern Central, and the famed Glenferrie Rd and High St shops await.
Soaring ceilings accentuate the scale of the gracious sitting room while abundant northern light illuminates every inch. Bi-fold doors connect or separate the adjacent, equally generous living/dining room served by a superb gourmet kitchen appointed with stone benches and stainless-steel appliances. Outside, a private paved courtyard invites al fresco dining, while a large double garage at the rear, accessed by a wide right-of-way, ensures convenience and security for two large cars.
Upstairs, the main bedroom resides in a separate wing, complete with a north-facing balcony, pristine en suite, and spacious walk-in robe. Two additional generously sized bedrooms with robes, a large family bathroom with spa bath, and a second north-facing balcony complete the upper level.
Ready for immediate enjoyment, with the potential for easy updates, this home includes an alarm system, video intercom, ducted heating, ceiling fans, ducted vacuum, powder room, and a separate laundry.
Enquire about this property
Request Appraisal
Welcome to Armadale 3143
Median House Price
$2,564,250
2 Bedrooms
$1,779,250
3 Bedrooms
$2,341,250
4 Bedrooms
$4,775,000
Armadale, situated just 7 kilometres southeast of Melbourne’s CBD, is a charming suburb celebrated for its sophisticated blend of heritage and modernity, particularly in its real estate offerings.
















