Sold32 Pakington Street, Kew
Opportunity Abounds in Kew Lifestyle Location
This generous split-level brick family home occupies a prime corner position and takes us on a trip down memory lane with its preserved mid 1960s styling; whilst offering an exceptional opportunity to build a new luxury home or townhouse development with dual street access on this site (STCA). Or alternatively there is scope to modernise and update the interior in keeping with today's lifestyle expectations. Enhanced by a much sought-after Kew lifestyle - just a few moments from Kew Junction shopping, cafes, restaurants including Leo's Fine Foods and Toscanos, Kew Primary, Recreation Centre and transport options. Plus easy access to the private school precinct or the Eastern Freeway and the CBD - all the lifestyle benefits this location is renowned for.
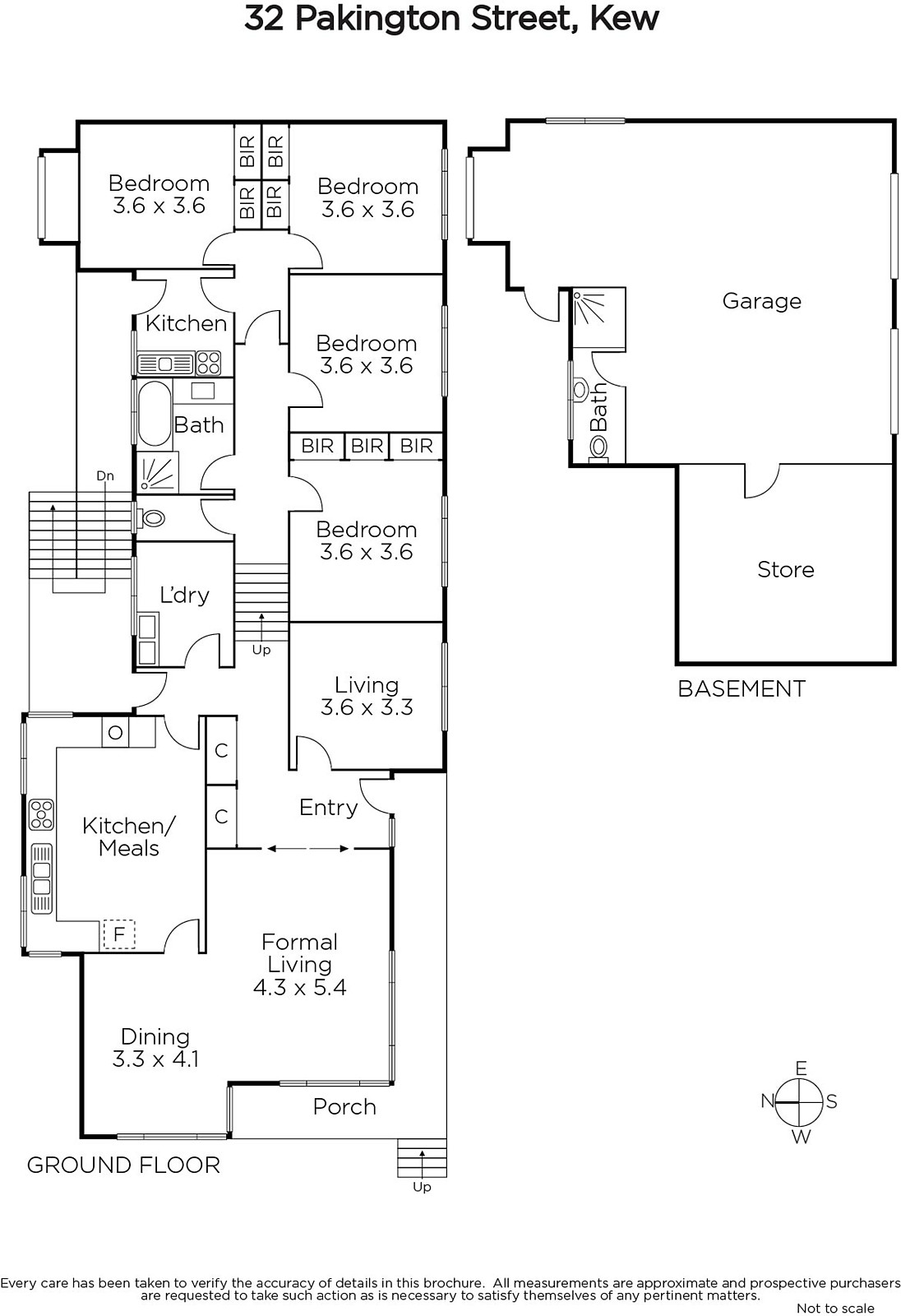
The interior features an entrance hall leading to a large sitting and dining room combined, TV room, study or informal living, modern kitchen and meals with adjacent laundry, leading to a northern terrace and rear walled garden. Complemented by four upper level bedrooms, a period-style family bathroom with separate WC and kitchenette or potential second family bathroom. Other features include ducted heating, evaporative cooling in the lower level, air conditioner (bedroom), extensive under house storage and cellar, double garage with access from Malmsbury Street.
Land size: 539sqm (approx.)















