Sold32 Mackay Street, Prahran
Sensational Indoor Outdoor Appeal
Desirably situated just moments from Hawksburn Village and Victoria Gardens, the timeless appeal of this residence's stylish, sun-drenched and generous interior spaces is more than matched by wonderfully spacious and private north-facing outdoor dimensions that provide sensational lifestyle enjoyment.
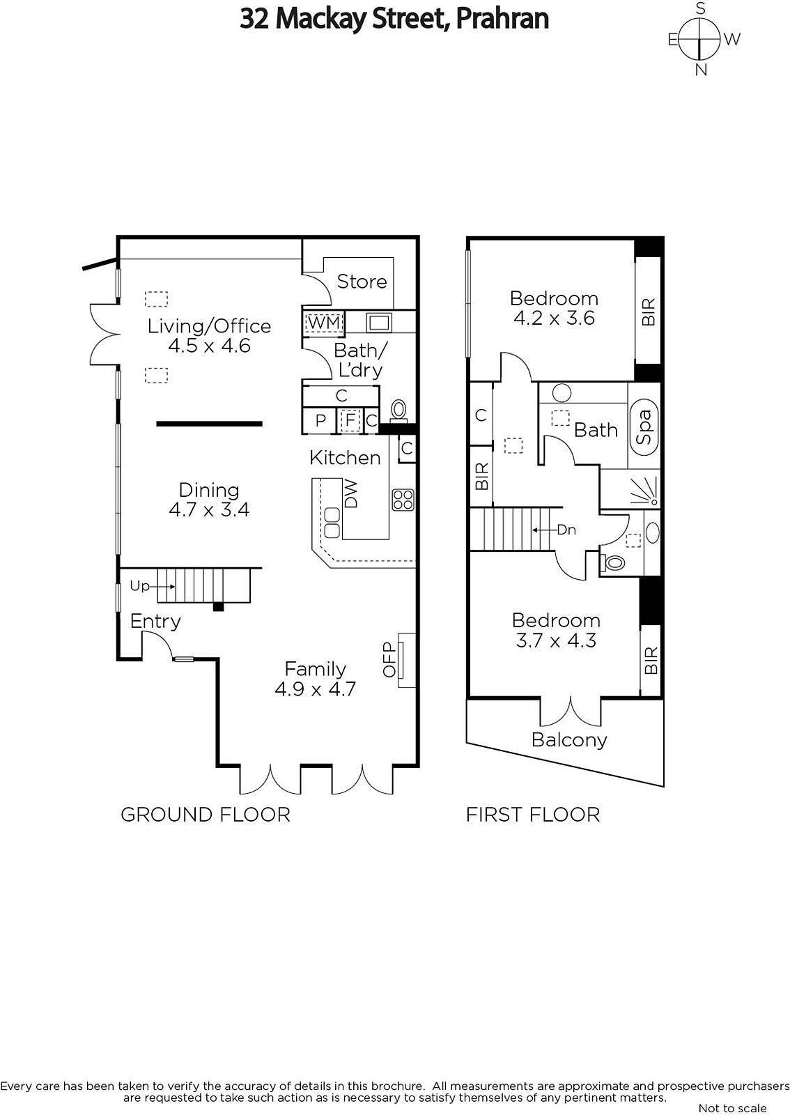
In a design that maximizes natural light, timber floors flow through the stunning living room with open fireplace opening to the expansive, secure north-facing garden surrounded by a high hedge of Manchurian Pear trees. The superbly appointed granite kitchen featuring Miele and Bosch appliances, inviting dining area, living/office open to a leafy side courtyard with water feature and BBQ. The main bedroom with built in robe and balcony enjoying city views is accompanied by a second double bedroom with built in robe and stylish central bathroom.
A fabulous entertaining venue, it also includes ducted heating, RC/air-conditioning, alarm, security intercom, powder-room, laundry, store-room, irrigation, audio wiring inside and out and secure, remote control entry 2x carport.
Enquire about this property
Request Appraisal
Welcome to Prahran 3181
Median House Price
$1,695,000
2 Bedrooms
$1,396,000
3 Bedrooms
$1,822,500
4 Bedrooms
$2,421,250
Just 5 kilometres southeast of Melbourne's CBD, Prahran is an eclectic suburb known for its fashionable boutiques, thriving cafe culture, and dynamic nightlife.














