Sold32 Heyington Place, Toorak
Georgian Elegance, Sought After Location
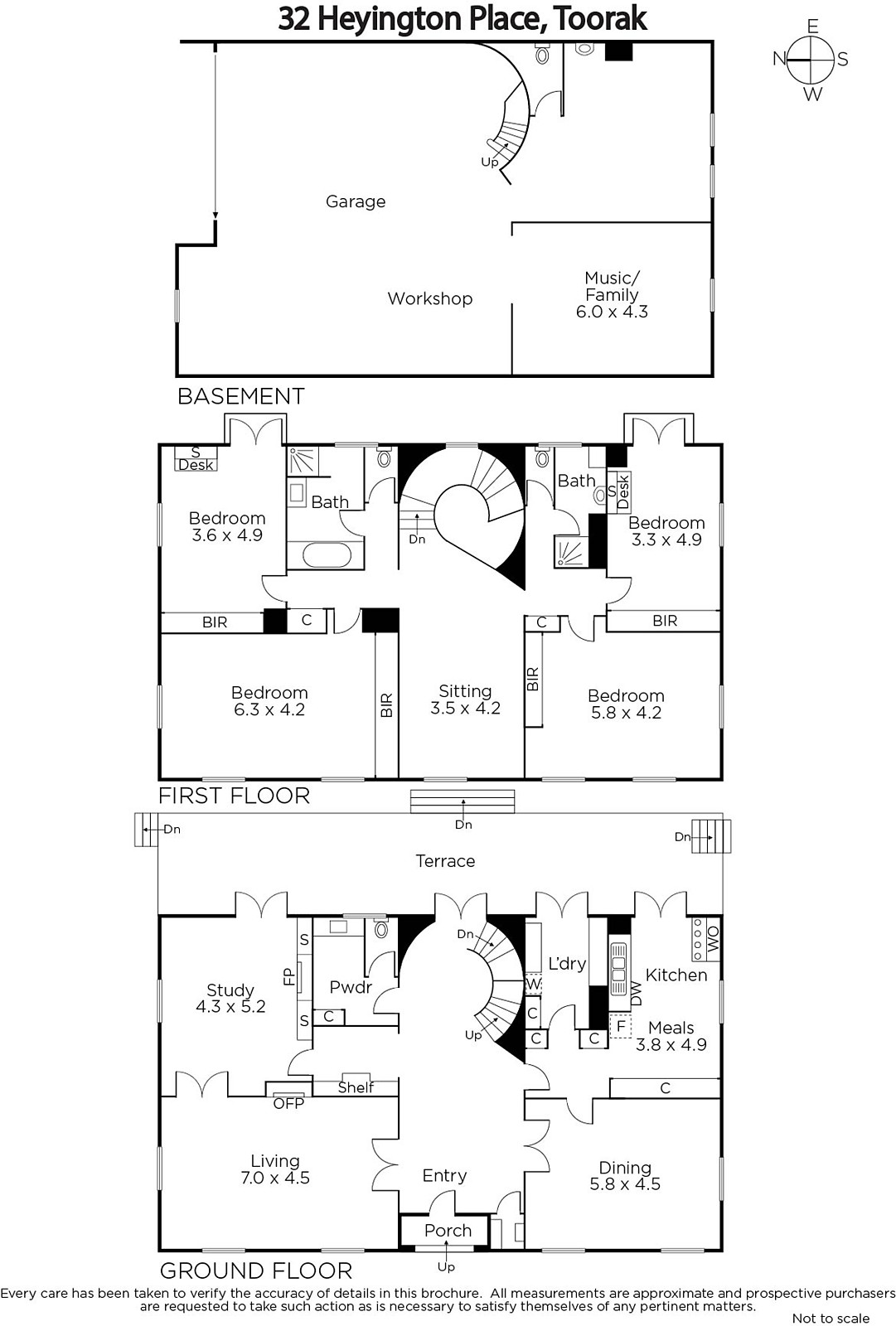
This superb interpretation of a Georgian family home with a traditional but adaptable layout features generously proportioned light-filled rooms that incorporate authentic architectural details of exceptional quality. The striking marbled reception hall introduces an elegant sitting room with open fireplace, beautiful formal dining room, and a library that leads to a panelled study overlooking the garden. The bright kitchen with casual dining area opens out to a wide elevated terrace and a private, established northeast garden. A graceful, curved staircase leads up to four generous, fitted bedrooms, a gallery and two bathrooms. The large basement includes a versatile recreation room, workshop, storage area and four car garage. The property includes a powder room, laundry, ducting for air conditioning, security system and is located near leading schools, tram, Heyington station and Toorak Village. This home is immaculately presented and has been in the one family since being built. Land 708sqm approx.
Enquire about this property
Request Appraisal
Welcome to Toorak 3142
Median House Price
$5,054,444
2 Bedrooms
$2,705,000
3 Bedrooms
$3,686,250
4 Bedrooms
$6,200,000
5 Bedrooms+
$14,287,500
Toorak, an emblem of luxury and prestige, stands as Melbourne's most illustrious suburb, located just 5 kilometres southeast of the CBD.















