Sold31 Wheatland Road, Malvern
Sensational Designer Style
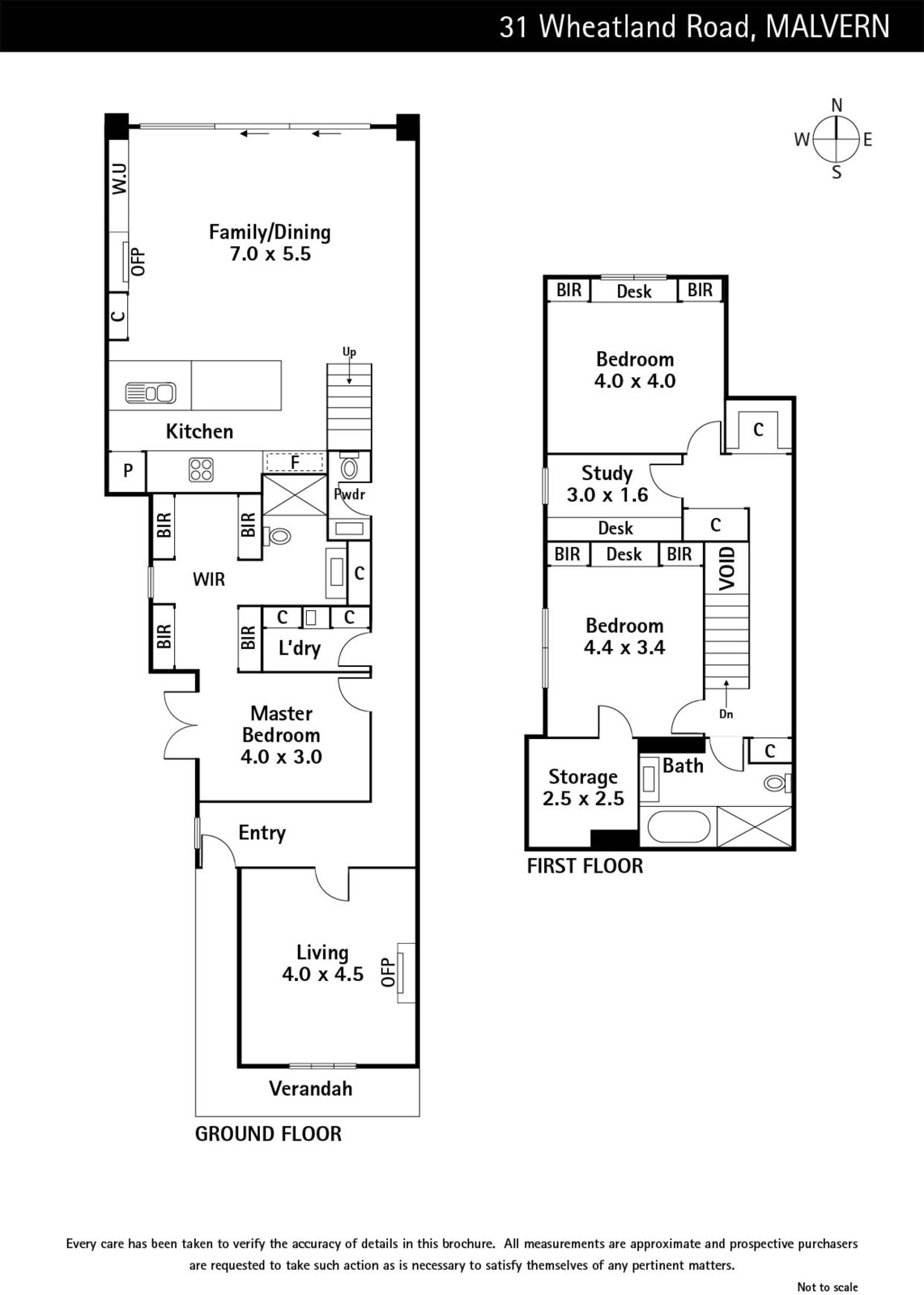
Behind the captivating Edwardian façade of this solid brick residence, a spectacular just completed transformation has resulted in a scintillating ultra stylish contemporary home that effortlessly delivers every family requirement in a low maintenance context. Enjoying a preferred north-facing orientation, it is enviably situated just moments from Milton Gray Reserve, Malvern Primary and station and Glenferrie Rd shops and cafes. Wide European oak floors highlight the contemporary approach taken through the L-shaped hallway, beautiful sitting room with OFP and the expansive open plan living and dining room with open fire, sleek cabinetry and a state of the art kitchen boasting black stone benches, Miele appliances and integrated Liebherr fridge/freezer. An entire wall of glass opens out to a private north-facing courtyard with off street parking via ROW. The stunning main bedroom with designer en-suite and walk in robe enjoys downstairs seclusion away from two further bedrooms with built in robes and desks, fitted study and lavish bathroom upstairs. Completed with meticulous attention to detail, this sensational home also includes ducted heating and cooling, alarm, powder-room, laundry, irrigation, water tank and attic storage.
Enquire about this property
Request Appraisal
Welcome to Malvern 3144
Median House Price
$2,990,083
2 Bedrooms
$2,106,667
3 Bedrooms
$2,454,667
4 Bedrooms
$3,357,084
5 Bedrooms+
$4,654,999
Malvern, located just 8 kilometres southeast of Melbourne's CBD, epitomises suburban sophistication and elegance.













