Sold31 Somers Street, Burwood
AUCTION THIS SATURDAY 10.30am
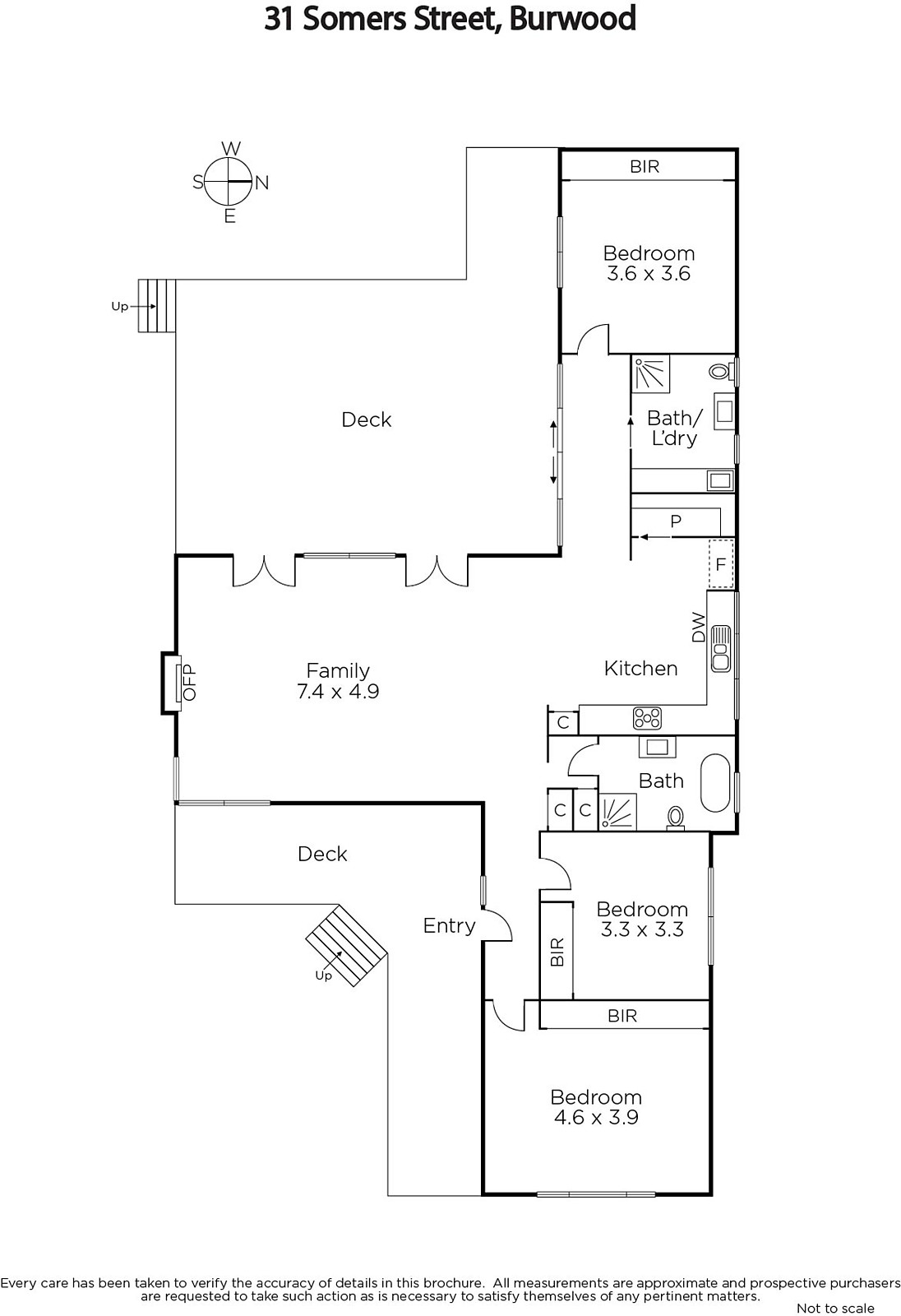
Renovated and immaculately presented, this single-level home on a substantial N/W facing 745sqm (approx.) allotment, presents an alluring opportunity to owner occupy, invest, extend or create your dream home to secure your family's future (STCA). A seamless blend of period character and easily-maintained interiors enhances 3 bedrooms, central family living opening onto a huge undercover year-round alfresco entertaining deck, well-equipped kitchen/dining with stainless steel appliances and walk-in pantry, as well as two bright bathrooms. Further benefits include laundry, polished timber floors, sash windows, extensive parking, lockup garage and a northwest facing patio on a sensational parcel of land in an idyllic locale near Wattle Park, transport links, Burwood Village, Wattle Park Primary, PLC, Emmaus College and Deakin University. NB (No heritage Overlay)
Enquire about this property
Request Appraisal
Welcome to Burwood 3125
Median House Price
$1,490,750
2 Bedrooms
$449,375
3 Bedrooms
$1,326,750
4 Bedrooms
$1,590,500
5 Bedrooms+
$1,738,500
Located 14 kilometres east of Melbourne CBD, Burwood is a vibrant suburb popular among families and students, known for its accessible real estate market.














