Sold31 Baker Avenue, Kew East
Enduring Fifties Charm, Modern Family Focus
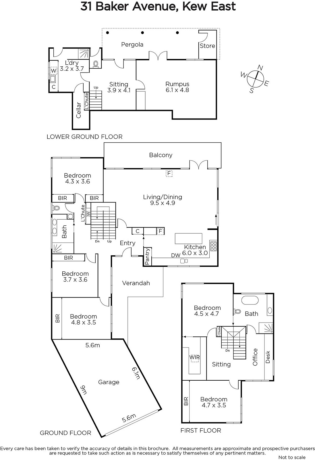
Seamlessly blending classic 1950's charm with contemporary style and luxury, this beautifully renovated and extended 5 bedroom, 3 bathroom home's impressive family appeal is further enhanced by its exceptional scale and enviable location close to parkland, fine schools and local shops.
Welcomed by high ceilings and warm Tasmanian Oak timber floors, the cleverly designed, expansive floor plan includes deluxe kitchen with island bench featuring hand-crafted timber façade and spacious family/meals area with imported Danish wood burning fire place opens out to elevated terrace boasting glorious vistas towards Yarra River parkland and beyond. Three robed bedrooms and luxury Dolomite bathroom are accompanied upstairs by sitting area, custom fitted study nook with re-claimed timber cabinetry, 4th robed bedroom and lavish master suite featuring lovely tree-top views and city glimpses, walk-in robe and stunning Dolomite ensuite.
The meticulous attention to detail continues to the lower level with hand honed terrazzo stairwell leading to sitting area, laundry with third shower and wine cellar/store room, toilet and large rumpus room flows out to covered alfresco, paved entertaining terrace with built-in mains gas BBQ sparkling in-ground pool and landscaped garden.
Situated on an expansive 904sqm (approx.) garden allotment the home is immaculately presented throughout, and boasts comprehensive list of lavish appointments including alarm, double glazed aluminium framed windows, copper clad second storey, zoned ducted heating and refrigerated cooling, ample storage, laundry chute, wine storage and lock up garage/workshop. Ideally located within close proximity to Yarra River parkland, Kew, Latrobe & Green Acres Golf clubs, Harp and Kew Junctions, Kew East Primary School, St Anne Catholic Primary School, Kew High School and easy access to the Eastern (M3) freeway offers straightforward commute to the City or Mornington Peninsula.
Enquire about this property
Request Appraisal
Welcome to Kew East 3102
Median House Price
$2,300,000
3 Bedrooms
$2,125,000
4 Bedrooms
$2,370,000
Kew East, a serene and leafy suburb located about 8 kilometres from Melbourne's heart, offers a combination of community warmth and suburban tranquillity.

















