Sold306 Canterbury Road, Surrey Hills
I've Seen Better Days!
Expressions of Interest Close Tuesday 15th November at 5pm
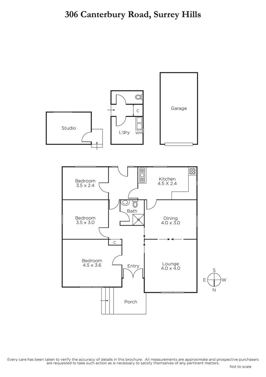
Offering a rewarding future is this totally original and unliveable 3-bedroom period home, sited on slightly elevated land measuring 713sqm approx. A well-positioned block in the heart of Surrey Hills, this promises an exceptional future to transform the current footprint into a truly comfortable family home, start again with a new custom designed home to suit your every need, or develop the site, within the General Residential Zone 5 planning scheme (STCA). Ideally located within easy reach of nearby Chatham Station, Surrey Hills Primary School, Camberwell High, Union Road shops and character-filled Maling Road.
Enquire about this property
Request Appraisal
Welcome to Surrey Hills 3127
Median House Price
$2,282,500
2 Bedrooms
$1,305,000
3 Bedrooms
$1,920,000
4 Bedrooms
$2,340,000
5 Bedrooms+
$2,950,000
Surrey Hills, a prestigious suburb located approximately 11 kilometres east of Melbourne’s CBD, epitomises gracious living with its leafy streets, heritage homes, and a strong sense of community.












