Sold30 Fairview Avenue, Camberwell
Price Revised - $1,550,000
Perfectly positioned within an exceptionally deep 606sqm approx. northwest facing allotment, this original period residence is complete with plans and permits for a stunning renovation that would create the ultimate single level dream home in a sought after tree-lined location near Burwood Village, Leo's Supermarket, a range of schools, trams and Deakin University.
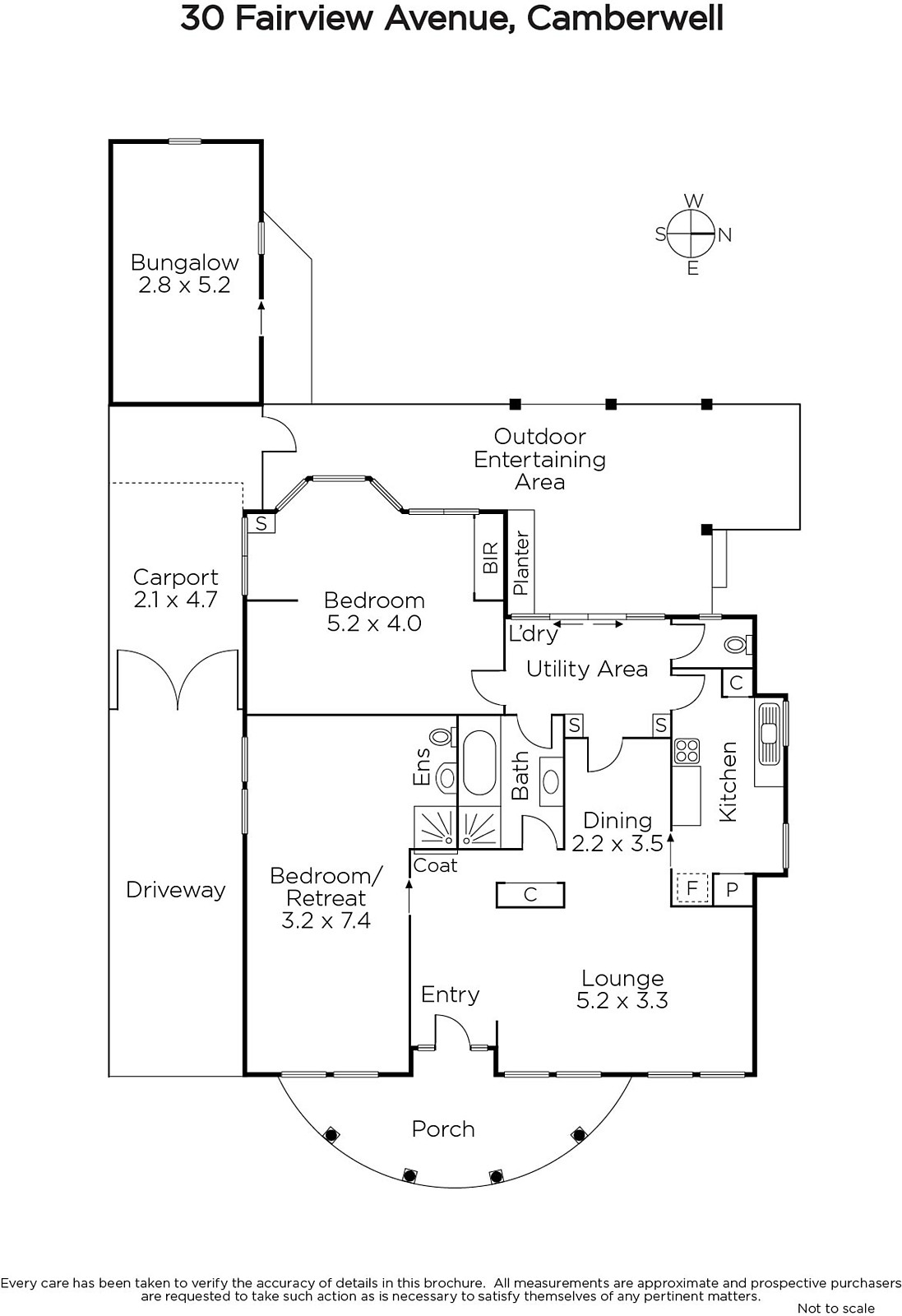
In a heritage overlay area, the existing 2-bedroom period residence features an abundance of original features through a generously proportioned living room, dining room, original kitchen with dining area and sun-room opening to the deep northwest private garden with studio and shed.
Ready to commence immediately, the completed approved plans are for a sensational family domain behind the original façade featuring 4-bedrooms, including main with en-suite, media/sitting room, a study and expansive living and dining area with gourmet kit hen opening to a landscaped garden with pool.
Enquire about this property
Request Appraisal
Welcome to Camberwell 3124
Median House Price
$2,608,000
2 Bedrooms
$1,530,000
3 Bedrooms
$2,225,000
4 Bedrooms
$2,604,000
5 Bedrooms+
$3,865,000
Camberwell, located just 9 kilometres east of Melbourne's CBD, stands out as a prominent suburb in the real estate market, renowned for its scenic, tree-lined streets and heritage-rich architecture.











