Sold3 Roslyn Street, Brighton
Award Winning and Iconic
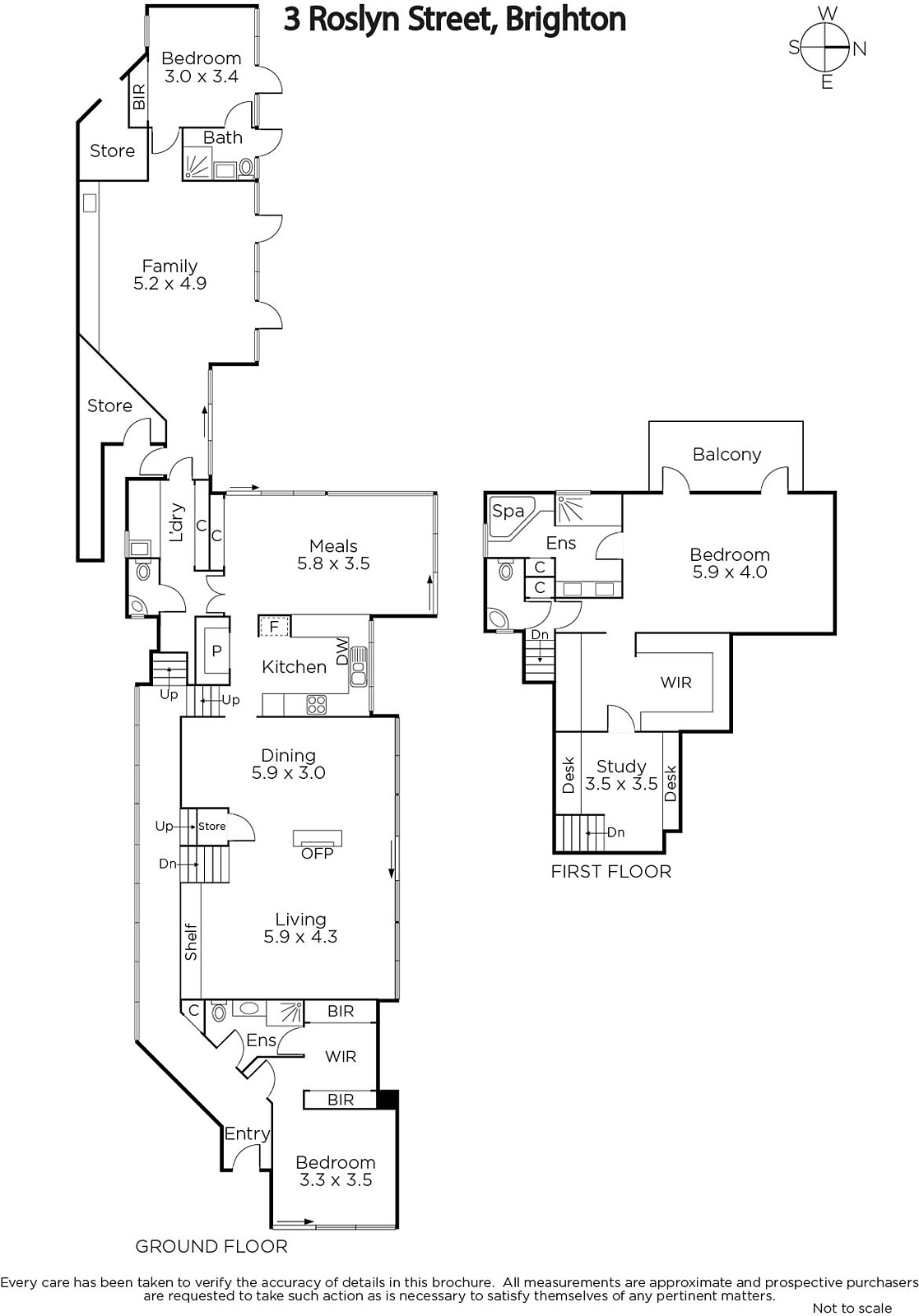
Architecturally acclaimed home is visionary and unique, created by Edgard Pirrotta for exclusive Brighton living. Awarded House Of The Year inby the Royal Australian Institute Of Architects, a recent revival has added contemporary quality and excellence. Families will love the three-zoned living areas, three bedrooms and a study, three bathrooms, and a renovated kitchen full of light and quality appliances. Look forward to the luxury of a generous parents' retreat with a walk-in dressing room, adjacent study, ensuite and deck. Relax outdoors in the garden with a pool and play space, and love the year-round garden views. New features are matched with the original vision for spacious living on 863sqm approx. Frameless showers, an induction cooktop, lots of storage, commercial-grade atrium windows, and a waterwise garden are a few of this home's many features. Superb address with Were St's supermarket and cafes around the corner, Haileybury and St Leonard's College a few blocks away, and Brighton Beach Primary School and Hampton St shopping close by.
Enquire about this property
Request Appraisal
Welcome to Brighton 3186
Median House Price
$3,278,333
2 Bedrooms
$2,066,833
3 Bedrooms
$2,509,166
4 Bedrooms
$3,611,666
5 Bedrooms+
$4,742,934
Brighton, located just 11 kilometres southeast of Melbourne CBD, is synonymous with luxury and elegance in the real estate market.














