Sold3 Finlay Street, Albert Park
Transform Dreams into Reality
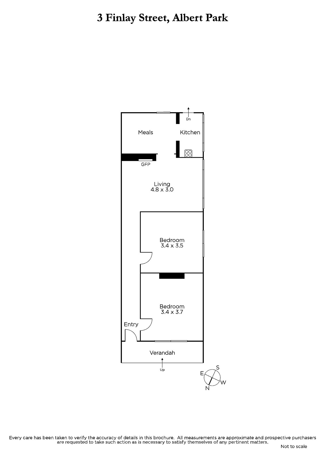
Enviably situated moments from Albert Park Village, cafes, the beach, Albert Park Lake, trams and zoned for Albert Park College and Albert Park Primary School, this classic single fronted Victorian brick residence represents an extraordinary opportunity in a coveted lifestyle location.
With charming hallmarks of period elegance, the potential and scope to reinvent this enticing home is almost limitless (STCA) plus this allotment has the added benefit of side laneway access (Faussett Lane). Beyond a traditional brick façade, this domain is presented as a blank canvas for you to inject your own style. Currently the home features an arched hallway flowing past two bedrooms to a central living area, with plenty of space for you to construct a brand new luxurious kitchen and bathroom plus ample room to extend if desired (STCA). Keen renovators will delight in this entry level opportunity and can be inspired by neighbouring homes that have been beautifully refurbished.
Enquire about this property
Request Appraisal
Welcome to Albert Park 3206
Median House Price
$2,440,000
2 Bedrooms
$1,677,500
3 Bedrooms
$2,518,750
4 Bedrooms
$3,762,500
Albert Park, nestled just 3 kilometres from Melbourne’s CBD, is a picturesque suburb known for its blend of historic charm and modern amenities.











