Sold3 Edlington Street, Hawthorn
AUCTION THIS SATURDAY
A quiet cul-de-sac moments from the eclectic Auburn Village forms the back-drop for this deceptively spacious semi-detached Edwardian home boasting a preferred northern rear aspect and generous front and rear off-street parking. Coupled with an ultra-convenient location close to the vibrant Glenferrie Road shops, restaurants, boutiques, the Recreation Centre, new cinema or Central Gardens; plus public transport options, several of Melbourne's most sought-after schools and Swinburne University are all within walking distance.
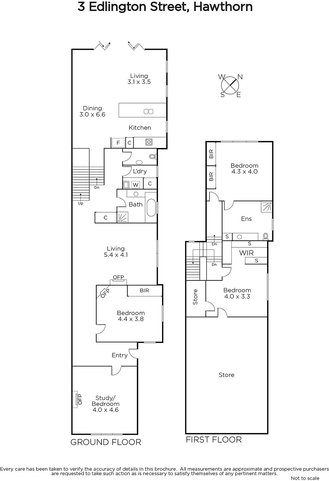
Subtle period features including ceiling roses, leadlight windows and Baltic Pine floors have been retained and complement the stylishly renovated interior and split-level rear extension. An L-shaped hallway leads to a study/home office or potential 4th bedroom, sitting room, separate laundry, downstairs bedroom and pristine bathroom and powder room plus two upstairs bedrooms, north-facing main with ensuite. A lower level family living area with polished concrete and beautiful timber in-laid floor includes a sleek CaesarStone and Euro equipped kitchen with wine storage cupboard flowing to a private, sun-drenched and garden-lit courtyard with gas mains connection - perfect for indoor/outdoor relaxation and entertaining. Other features include OFPs, zoned ducted heating and evaporative cooling, great storage including roof and garden shed, solar panels, front carport plus tandem off-street parking and rear off-street parking with lane access. Land size: 306sqm (approx.)
Enquire about this property
Request Appraisal
Welcome to Hawthorn 3122
- Median House Price- $2,888,333
- 2 Bedrooms- $1,410,000
- 3 Bedrooms- $2,084,000
- 4 Bedrooms- $3,754,167
- 5 Bedrooms+- $6,403,333
Hawthorn, approximately 6 kilometres east of Melbourne’s CBD, is an affluent and vibrant suburb known for its rich history, beautiful parks, and prestigious educational institutions.














