Sold3 Auburn Road, Hawthorn
"Bradgate" - Art Deco Enhanced
Privately & securely positioned, this superbly updated Art Deco residence offers a wonderful family lifestyle in the coveted Harcourt Hill precinct, within walking distance of several of Melbourne's finest private schools and Swinburne University; with transport options, parklands, Auburn Village and Glenferrie Road cafes, restaurants and boutiques only moments away.
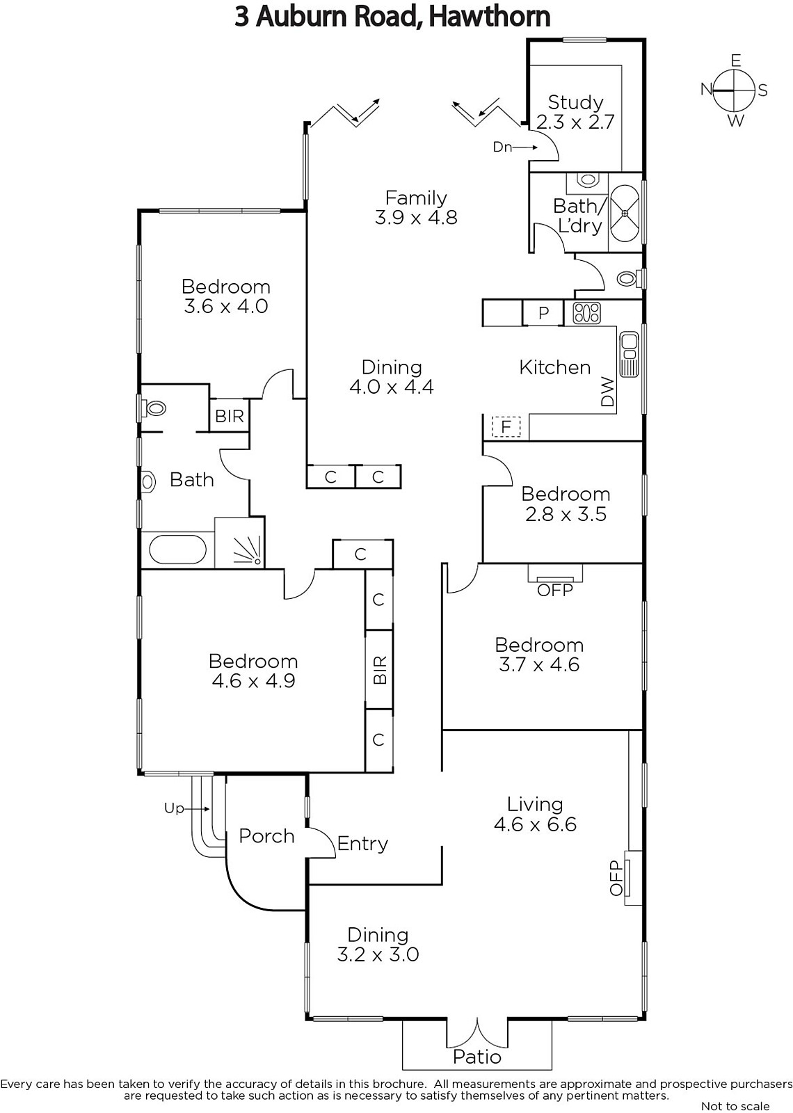
The interior features decorative ceilings, polished timber floors and a flexible floorplan which can be configured to suit individual requirements comprising a large sitting and dining room combined with OFP, four bedrooms, period-style bathroom, second bathroom/laundry with separate WC and study/office. An expansive living area with big north-facing windows and concertina doors plus a sleek modern kitchen with black granite bench-tops, Ilve stainless steel gourmet stove and integrated dishwasher flows to a paved outdoor alfresco area with awning and a heated swim spa extending family recreation and entertaining spaces. Other features of this fine family home include ducted heating & evaporative cooling, landscaped gardens and a Silver Birch lined driveway to a double garage.
Land size: 753sqm (approx.)
Enquire about this property
Request Appraisal
Welcome to Hawthorn 3122
Median House Price
$2,981,250
2 Bedrooms
$1,677,500
3 Bedrooms
$2,147,500
4 Bedrooms
$3,550,000
5 Bedrooms+
$6,271,425
Hawthorn, approximately 6 kilometres east of Melbourne’s CBD, is an affluent and vibrant suburb known for its rich history, beautiful parks, and prestigious educational institutions.













