Sold3 Adamson Street, Brighton
A Private Haven metres from Church St
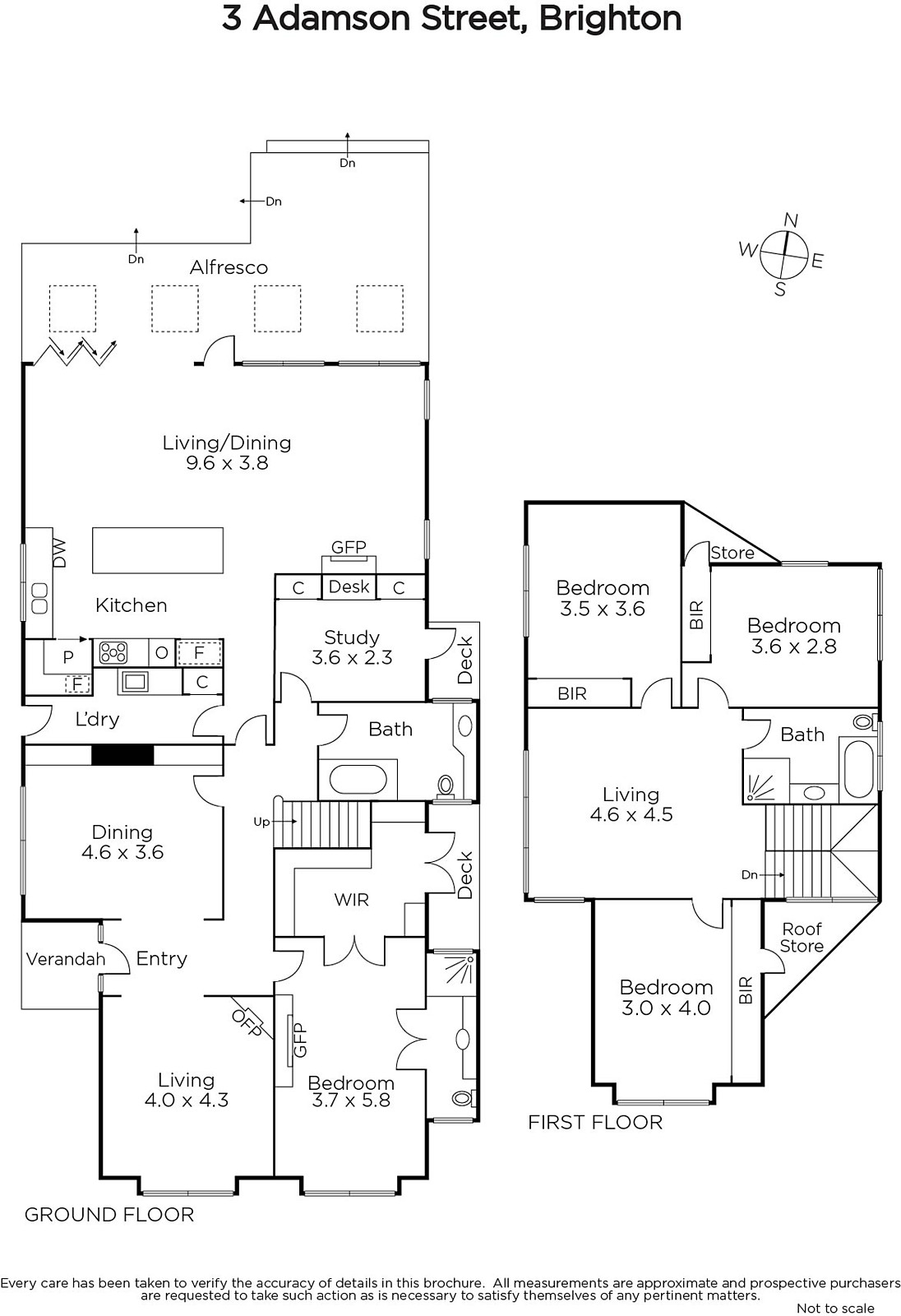
Discover the perfect family hideaway, blending 1930s character and today's spaciousness in a prized location. Four-bedroom and study home is renovated and extended, while retaining character and charm. The best of both worlds is here, with a large family room looking out to a garden, deck and swim spa, classic lounge and dining rooms with period features, and an upstairs TV area. A refined revival has created a ground-floor parents' retreat that includes a sitting area, gas log fire, ensuite and walk-in wardrobe. Smart planning shows, with a family-size kitchen featuring a large island bench and European appliance. It's easy to entertain year-round in this spacious home, with a skylit deck accessed via bifold doors from the family room. There's even views of the city and New Year's fireworks from upstairs. Impressive fitout includes a seven-zone Sonos system, Ethernet wiring, solar panels, plantation shutters, secure entry, ceiling speakers, and underdeck water storage. Surrounded by established gardens featuring grand oak and elm trees, this is a fine family home in a no-through road. Outstanding location close to Church Street's excellent cafes and shopping, Middle Brighton station, Brighton Grammar and Firbank.
Enquire about this property
Request Appraisal
Welcome to Brighton 3186
Median House Price
$3,255,000
2 Bedrooms
$1,954,250
3 Bedrooms
$2,487,500
4 Bedrooms
$3,662,500
5 Bedrooms+
$4,714,700
Brighton, located just 11 kilometres southeast of Melbourne CBD, is synonymous with luxury and elegance in the real estate market.














