Sold3/8B Park Street, Abbotsford
Inspired Warehouse Conversion
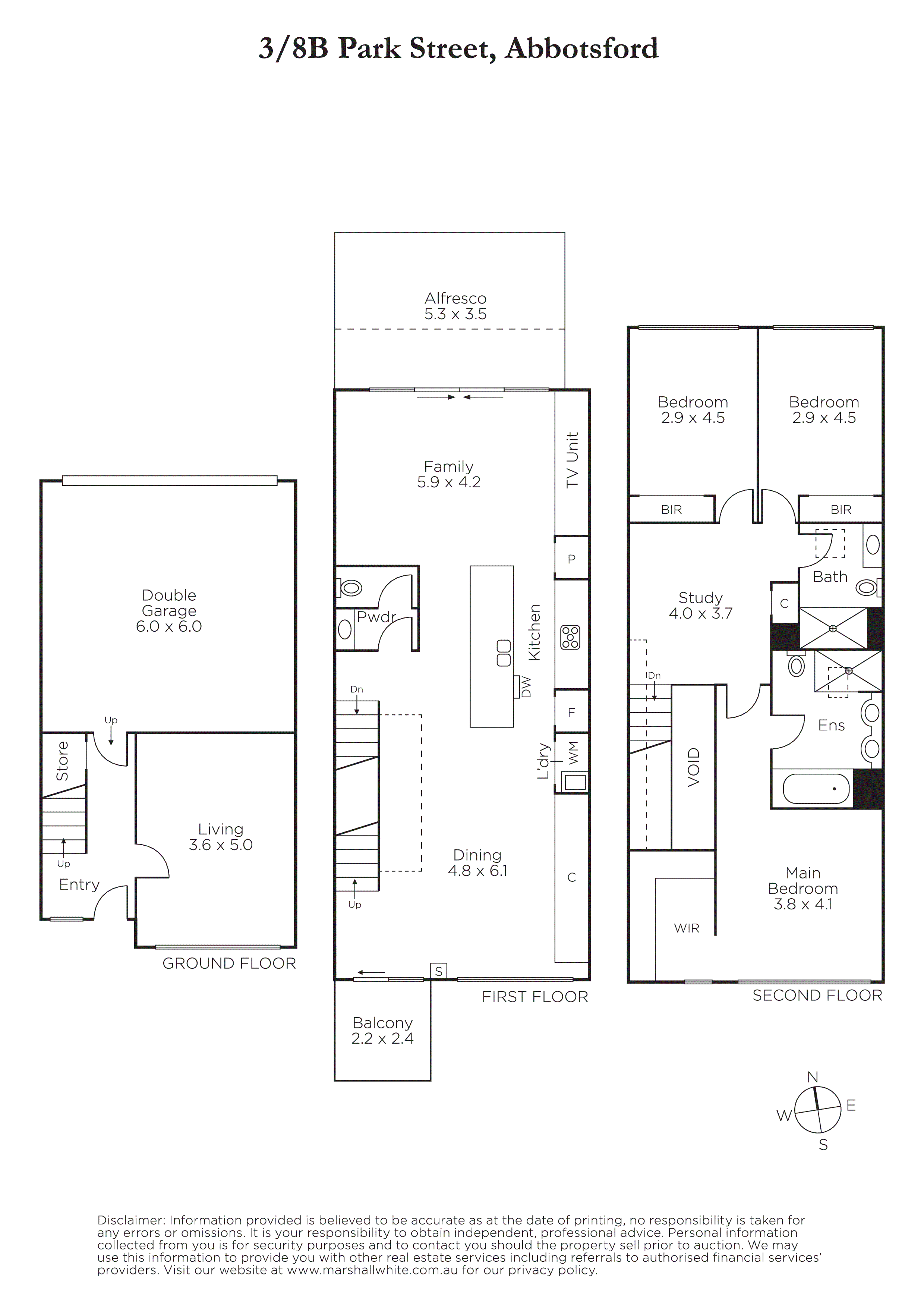
Within a historic c1900 former shoe factory brilliantly converted by Interlandi Mantesso Architects, this sensational boutique residence delivers house-sized proportions, sun-drenched indoor-outdoor living and an elite level of quality and luxury throughout. Literally metres to cosmopolitan Victoria St, the Yarra River and Abbotsford Convent, it is an idyllic inner urban family retreat only minutes to the CBD.
Oversized white tiles accentuate the wonderful sense of light in the spectacular open plan living and dining room with a sublime gourmet Miele kitchen featuring lavish marble benches and breakfast bar at the centre of the room. A balcony at one end is matched by a large private entertaining terrace at the northern end. On the level above there is a generous main bedroom with designer en suite and walk in robe, two additional robed bedrooms, a stylish bathroom and central retreat. On the ground level, an expansive second living room is ideal as a media room, convenient home office or 4th bedroom.
Comprehensively appointed with video intercom, RC/air-conditioning, remote blinds, powder-room, Euro-laundry, storeroom and internally accessed double garage.















