Sold3/1468 Malvern Road, Glen Iris
An Elegant & Private Town Residence
This elegant contemporary town residence is privately and securely positioned at the rear of a boutique complex of only three stylish residences. Offering the perfect low maintenance living environment for retirees scaling down or young professionals and families.
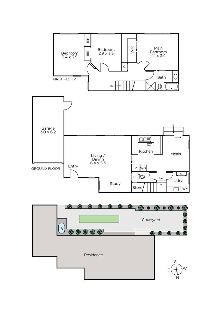
Set in a neatly maintained garden enclave, this property is deceptively spacious and immaculately presented; featuring a combined living and dining room incorporating a stylish kitchen well-equipped with Euro appliances, adjacent laundry and powder room. Opening to a generous paved courtyard with a gas mains barbeque and lined with standard roses - providing a secluded area for alfresco dining, entertaining or just relaxing outdoors. Whilst upstairs has a study area along with three bedrooms, a main with WIR and a dual access sparkling family bathroom. Other attributes include intercom, R/C air conditioners, ducted heating, high quality fixtures & fittings, rain water tank and a remote garage/storage with courtyard access.
All conveniently located close to public transport options including Gardiner Station, trams and CityLink for travel to the CBD or Mornington Peninsula. Minutes from either Malvern Road or Glenferrie Road shops, cafes or restaurants, with an array of sought-after schools to choose from; plus Harold Holt Swim Centre Gardiners Creek trails or Central Park for family recreation.
Enquire about this property
Request Appraisal
Welcome to Glen Iris 3146
Median House Price
$2,593,750
2 Bedrooms
$1,528,750
3 Bedrooms
$2,220,250
4 Bedrooms
$2,708,750
5 Bedrooms+
$3,823,500
Glen Iris, situated approximately 10 kilometres southeast of Melbourne's CBD, is a well-established and affluent suburb known for its leafy streets, spacious parks, and prestigious schools.














