Sold2A Finlayson Street, Malvern
Stunning Executive Style
Nestled within a desirable pocket near Malvern Primary, Penpraze Park, Glenferrie Rd and Malvern station, this stunning contemporary executive residence delivers an impressive level of finish through sensational light-filled dimensions resulting in an impressive lock up and leave family domain.
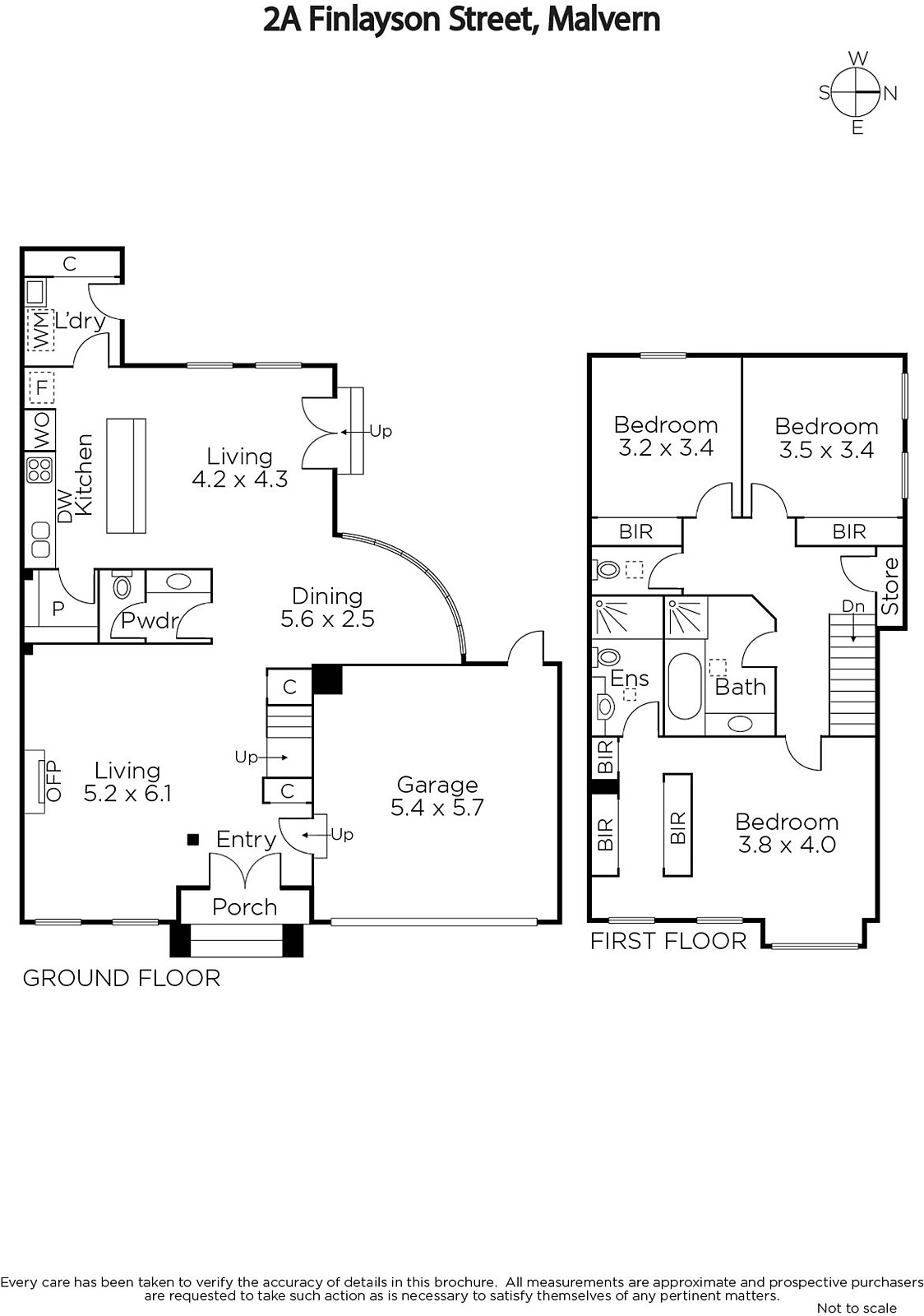
Inspired designer style is immediately apparent through the matte timber hallway and glorious sitting room with open fireplace. The premium gourmet kitchen boasting Gaggenau appliances and stone benches, family living area and sunny dining open to a completely private north-facing courtyard. The generous main bedroom with fitted robes and marble en-suite is accompanied by two additional double bedrooms with built in robes and a stylish marble bathroom.
Appointed to the highest standards, it also includes ducted heating, RC/air-conditioning, marble powder-room, laundry, internally accessed double garage and off-street parking.
Enquire about this property
Request Appraisal
Welcome to Malvern 3144
Median House Price
$2,750,000
2 Bedrooms
$2,110,000
3 Bedrooms
$2,438,000
4 Bedrooms
$3,350,000
5 Bedrooms+
$4,980,000
Malvern, located just 8 kilometres southeast of Melbourne's CBD, epitomises suburban sophistication and elegance.











