Sold2a Dalny Street, Malvern
Victorian Grandeur - "Allangate"
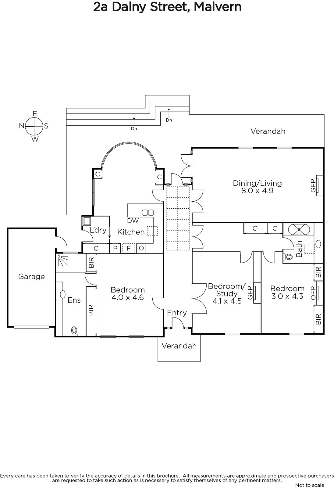
Grand period proportions are rarely found in a single level format that delivers an easily managed approach to lifestyle. Following a clever reconfiguration of an illustrious Victorian, this unique three bedroom home does just that, combining all the exquisite elegance of magnificent "Allangate" with a low maintenance garden parcel that places all the delights of Glenferrie Road and High Street, city trams, community amenities and Malvern Gardens all within a short stroll. Relishing the independence of its own entry and street frontage, a flexible floorplan arrangement provides an ideal opportunity for area entrants or those seeking to down scale from a larger family home. Soaring decorative ceilings, tall original windows and generous dimensions distinguish gracious accommodation that includes a majestic dining/living area with marble open fireplace, a well-equipped modern kitchen with relaxed bay window living/dining, impressive main bedroom with extensive built in robes and marble ensuite, sizeable second bedroom and twin robes, 3rd bedroom/study plus sky lit family bathroom. A wide central hall adorned with a glorious glass atrium steps through delicate French doors to paved undercover alfresco spaces and a sunny courtyard garden full of established flowering plants. Features ducted heating, reverse cycle cooling, secure intercom entry, remote garage with rear garden access and additional off street parking. Land: 361sqm approx.
Enquire about this property
Request Appraisal
Welcome to Malvern 3144
Median House Price
$2,990,083
2 Bedrooms
$2,106,667
3 Bedrooms
$2,454,667
4 Bedrooms
$3,357,084
5 Bedrooms+
$4,654,999
Malvern, located just 8 kilometres southeast of Melbourne's CBD, epitomises suburban sophistication and elegance.













