Sold2A Campbell Grove, Hawthorn East
Sophisticated Penthouse Luxury
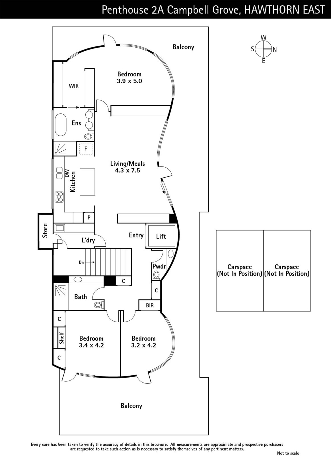
The spectacular spaces of this brand new architect designed contemporary entire floor penthouse surrounded by expansive private terraces deliver a sophisticated, ultra stylish and secure indoor/outdoor lifestyle brilliantly enhanced by a "village" location and unsurpassed panoramic city views.
Direct and secure lift access to your apartment reveals radiantly light, generously proportioned dimensions featuring floor to ceiling full width glass and dark stained oak floors. The inviting living and dining area with a sublime sleek Miele kitchen boasting marble benches opens out to a large surrounding northwest terrace commanding breathtaking city views. A wall of curved glass encases the seductive main bedroom with fitted walk in robe and designer en-suite with an evocative egg shaped bath. Two additional double bedrooms with built in robes and a lavish bathroom both open out to a large sunny terrace.
Close to shops, cafes, trams and Camberwell Junction, this sensational penthouse also includes ducted heating and cooling, video intercom, double glazing, powder-room, laundry, store room and 2 basement car-spaces.
Enquire about this property
Request Appraisal
Welcome to Hawthorn East 3123
Median House Price
$2,536,750
2 Bedrooms
$1,525,750
3 Bedrooms
$2,093,750
4 Bedrooms
$2,985,000
5 Bedrooms+
$3,822,500
Situated 7 kilometres east of Melbourne's centre, Hawthorn East offers a coveted mixture of greenery, historic charm, and modern amenities that cater to a wide range of preferences and lifestyles.















