Sold296A Williams Road, Toorak
Contemporary Elegance Opposite Como Park (Access via Washington Street)
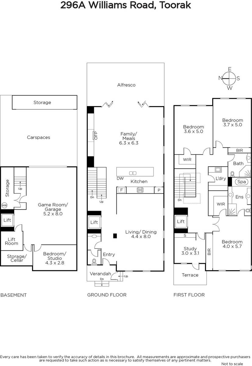
Commanding a sensational location directly opposite Como Park and just a short stroll to Toorak Village, every modern luxury has been incorporated into the design of this stunning 270sqm approx plus basement, contemporary residence to create a lavishly appointed and proportioned indoor-outdoor domain that offers superb lock up and leave convenience.
Polished timber floors and high ceilings define the sublime formal sitting and dining room overlooking a private landscaped northwest forecourt with picturesque heated pool with spa jets. The expansive living and dining room with 2 fish tanks, open fire and a gourmet kitchen boasting stone benches open through bi-fold doors to a fabulous covered al fresco pavilion providing wonderful year round outdoor entertaining. Both a lift and stairs lead up to the opulent main bedroom with chic en-suite and walk in robe, two additional double bedrooms with robes, a fitted study with balcony and stylish bathroom. The lift also leads down to a gym or studio, wine cellar/store-room, 2 car garage or multi-purpose room, compacter storage and 2 car-spaces accessed via Washington Street.
Impeccably finished with alarm, video intercom, zoned heating and cooling, surround sound, powder-room and laundry.
Enquire about this property
Request Appraisal
Welcome to Toorak 3142
Median House Price
$5,008,888
2 Bedrooms
$2,460,000
3 Bedrooms
$3,580,000
4 Bedrooms
$6,350,000
5 Bedrooms+
$13,500,000
Toorak, an emblem of luxury and prestige, stands as Melbourne's most illustrious suburb, located just 5 kilometres southeast of the CBD.















