Sold270 Punt Road, South Yarra
A South Yarra Masterpiece
One of the most uniquely striking and architecturally astounding builds to hit the market in South Yarra in a location that wants for nothing. Parks, retail, bars, cafes and transport options all sit beyond the dramatically spectacular gates of 270 Punt Road.
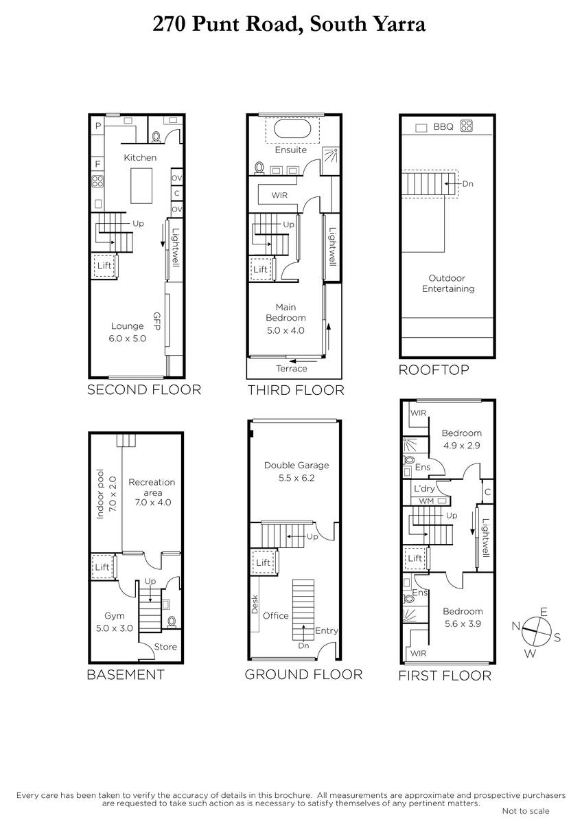
The imposing grandeur of this brand new impeccably built South Yarra residence belies the true detail and irreplaceable quality of what is found behind the entrance. Complete with two pools, one outdoor surrounded by palm trees at one end and one of the largest available outdoor televisions at the other. The other, an indoor 'grotto' style pool in the basement which is complimented by a full gym studio and powder room and home office.
Living areas are flooded with natural north western light, every surface uncovers the meticulous detail that has gone into the property. Venetian render, marble walls, bespoke Gaggenau filled kitchen and custom floors throughout.
3 full sized bedrooms with palatial walk in robes come with incredibly proportioned ensuites, the main suite offering jaw dropping finishes from cabinetry to flooring to custom lighting and marble stone work and views back over the CBD.
A stunning lift runs throughout the residence leading to an entertainer's dream on the rooftop - perched atop looking over Fawkner Park, South Yarra, the CBD and views across the bay - a BBQ deck to rival any in the world.
Enquire about this property
Request Appraisal
Welcome to South Yarra 3141
Median House Price
$2,176,000
2 Bedrooms
$1,324,000
3 Bedrooms
$2,305,834
4 Bedrooms
$4,020,000
5 Bedrooms+
$5,150,001
South Yarra, an iconic Melbourne suburb, is renowned for its sophisticated charm, merging high-end retail, exquisite dining, and vibrant nightlife with green spaces.





















