Sold27 Spencer Road, Camberwell
Enticing Charm in Expansive Gardens
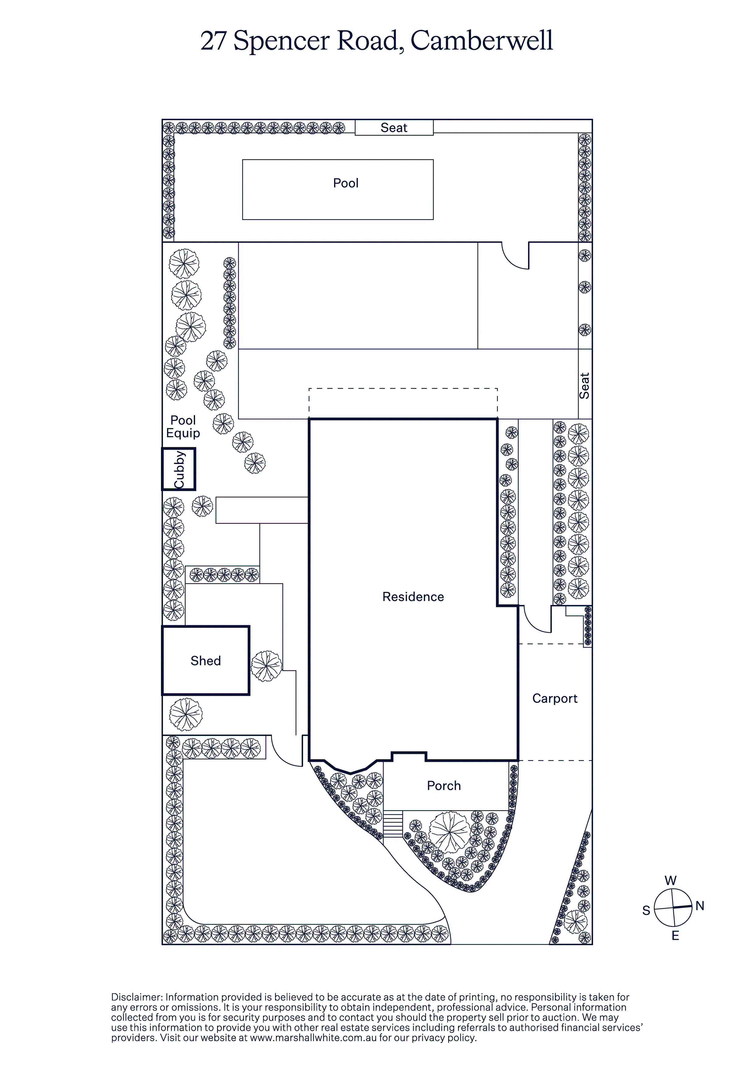
Behind an exceptionally broad frontage, this charming c1927 residence’s impeccably presented blend of period charm and modern comfort is ideal for immediate family enjoyment while considering options to further update or extend into the very deep private northwest facing garden and pool surrounds.
Double door entry from the generous verandah introduces a wide central hall and gracious sitting room with open fire, Baltic pine floors and high ceilings. Timber floors flow through the expansive living and dining room served by a bright well-equipped kitchen and opening to a wide undercover Spotted Gum deck overlooking the deep private northwest facing garden and solar heated pool. The four bedrooms (three with robes) and a home office are accompanied by a stylish bathroom and powder-room.
In an enviable pocket close to Riversdale station, Camberwell Junction, Middle Camberwell shops, trams, elite schools, Riversdale Park and sporting precincts, it includes an alarm, ducted heating, evaporative cooling, laundry, garden shed and carport
Enquire about this property
Request Appraisal
Welcome to Camberwell 3124
Median House Price
$2,608,000
2 Bedrooms
$1,530,000
3 Bedrooms
$2,225,000
4 Bedrooms
$2,604,000
5 Bedrooms+
$3,865,000
Camberwell, located just 9 kilometres east of Melbourne's CBD, stands out as a prominent suburb in the real estate market, renowned for its scenic, tree-lined streets and heritage-rich architecture.





















