Sold26 Fairfield Avenue, Camberwell
Fabulous Family Oasis
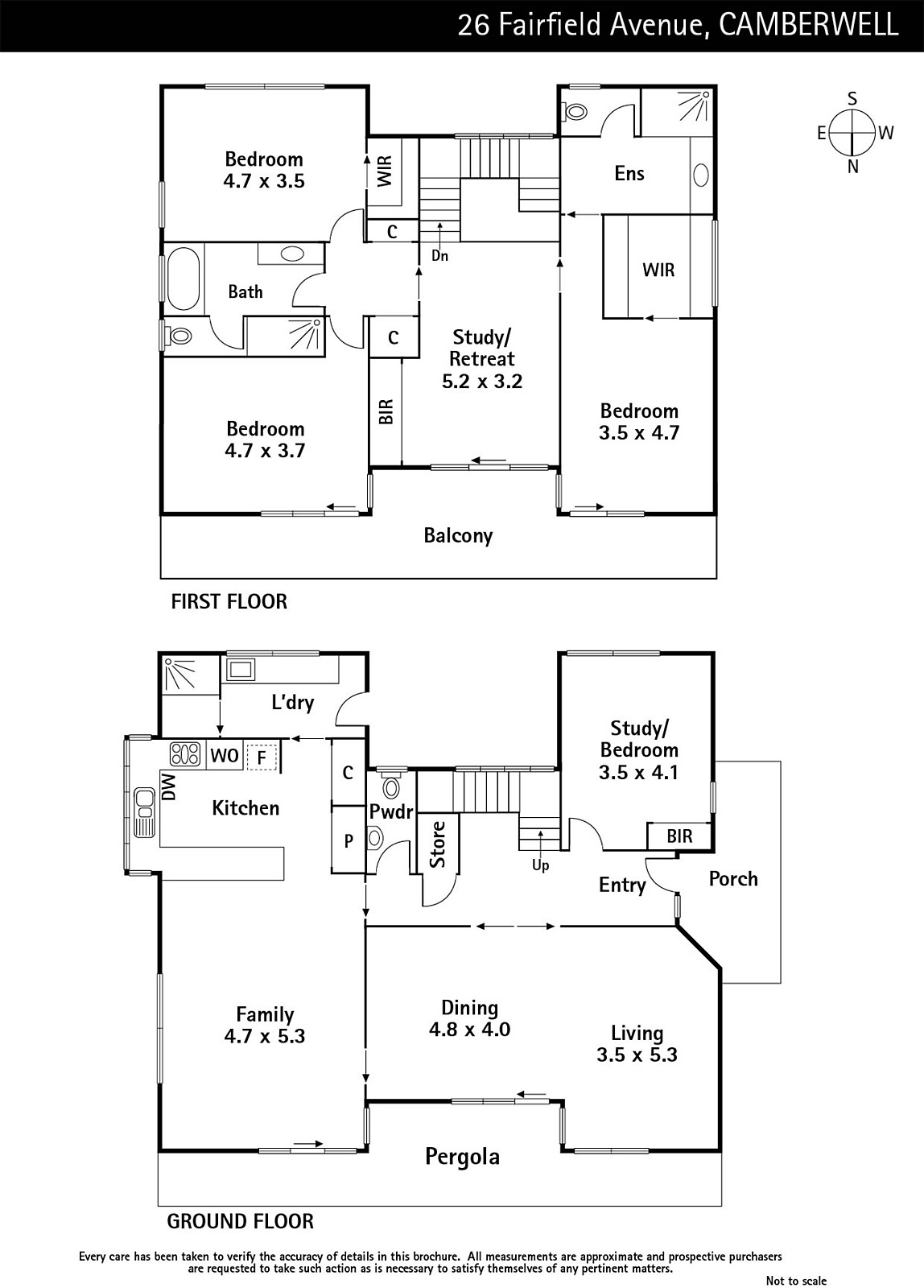
Brilliantly designed to maximize northern sunlight, this signature 1986 Merchant Builders residence's timeless design and substantial 935sqm approx. allotment delivers enviable family lifestyle appeal in a prized pocket close to Camberwell Junction, trams, schools and parks. The generous formal living and dining room and relaxed family room served by a striking red European kitchen all open out to the private north-facing garden with stone entertaining terrace and picturesque pool. A large sunny retreat with north-facing balcony separates the main bedroom with en-suite and walk in robe from two further double bedrooms with built in robes and a bathroom. A 4th bedroom or study and powder-room are conveniently situated on the ground level. Perfect to just move in and enjoy while also offering scope to update as required, this intelligently designed home includes slab heating, RC/air-conditioning, alarm, video intercom, ducted vacuum, 3rd shower, laundry, store-room, 2.8kW solar system, studio/storage and double carport.
Enquire about this property
Request Appraisal
Welcome to Camberwell 3124
Median House Price
$2,590,000
2 Bedrooms
$1,512,000
3 Bedrooms
$2,270,000
4 Bedrooms
$2,771,000
5 Bedrooms+
$3,500,000
Camberwell, located just 9 kilometres east of Melbourne's CBD, stands out as a prominent suburb in the real estate market, renowned for its scenic, tree-lined streets and heritage-rich architecture.









