Sold26 Essex Road, Surrey Hills
'Lonsdale' c1920
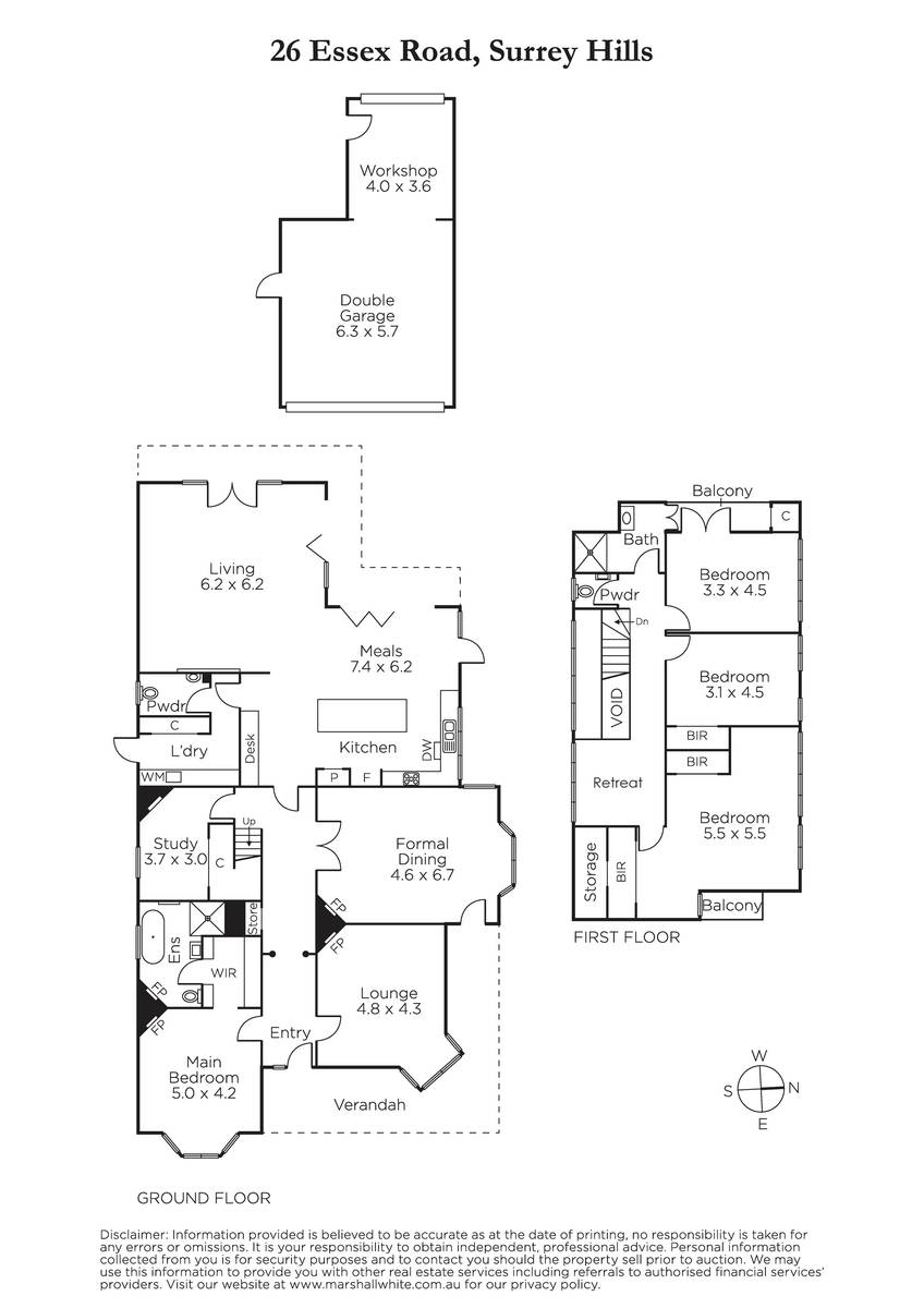
A prestigious location in the coveted Surrey Hills English Counties precinct forms a beautiful backdrop to this elegant period family residence. Surrounded by gorgeous gardens framed by Silver Birch trees it showcases the generous proportions and classic period features including leadlight bay windows and timber fretwork typical of its era. The original rooms have been cleverly complemented by quality extensions providing a superb floorplan that has family functionality and garden vistas at its core.
Uncompromising attention to detail has ensured the renovations harmoniously blend heritage character with the contemporary living areas and comprises entrance hall, formal sitting room and magnificent dining room with a timber ceiling, study, downstairs main bedroom (WIR/ensuite), powder room and laundry. A generous informal living and dining room incorporates a superbly appointed hostess kitchen leading through concertina doors to a private garden and sandstone paved outdoor entertaining area with solar-heated in-ground pool and built-in barbeque. Upstairs has an attic-style retreat, three bedrooms, two balconies and a family bathroom.
Other features include original OFPs, Smeg S/S stove and dishwasher, Hydronic heating, split-system air-conditioners, 25,000 litre underground water tank, remote/gates, 2-car garage+storage.
Land size 1,065sqm (11,463.50sqft) approx.
Enquire about this property
Request Appraisal
Welcome to Surrey Hills 3127
Median House Price
$2,300,250
2 Bedrooms
$1,418,334
3 Bedrooms
$1,936,666
4 Bedrooms
$2,382,500
5 Bedrooms+
$3,223,333
Surrey Hills, a prestigious suburb located approximately 11 kilometres east of Melbourne’s CBD, epitomises gracious living with its leafy streets, heritage homes, and a strong sense of community.






















