Sold26 Boyle Street, Ashburton
Superb Sun-Drenched Living
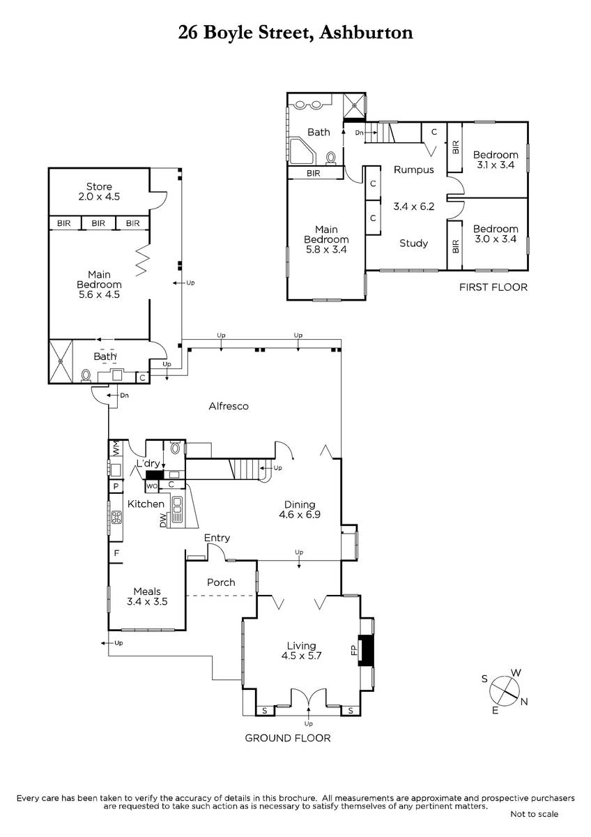
Designed impressively for free-flowing family living and entertaining, inside and out, this captivating solid brick c1950's residence's previously renovated dimensions deliver instant family appeal in a coveted location near Gardiner's Creek, Watson Park, Alamein station, Ashburton Village and schools.
Natural light and Baltic pine floors are the defining characteristics of the very wide entrance hall, gourmet kitchen with Blanco appliances and the casual dining room overlooking the garden. The separate spacious living room with a French wood fire heater and a generous dining area open through bi-fold doors to an expansive covered entertaining deck overlooking the deep private west-facing garden. A sensational versatile recreation room or 4th bedroom with stylish bathroom and robes, also fully opens to the garden through bi-fold doors extending entertaining options. Upstairs there are three additional bedrooms with built in robes, a retreat and second bathroom.
Ideal to enjoy immediately while also offering scope to further update, it includes ducted heating, evaporative cooling, powder-room, laundry, garden shed, and carport.















