Sold26 Arundel Crescent, Surrey Hills
Gorgeous English Counties Victorian with Park Outlooks
Step inside and enjoy the superb ambience of this impeccably presented double fronted Victorian residence c1890, faithfully renovated to preserve its decorative period features throughout, including leadlight glass, ceiling roses and cornices; whilst providing zoned living spaces geared to today's contemporary lifestyle. Set on a lush landscaped garden allotment, which overlooks South Surrey Park in the prized English Counties precinct providing a serene lifestyle oasis.
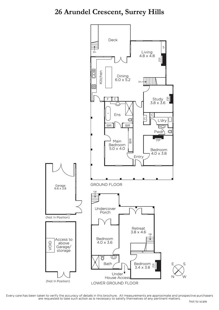
Introduced by a wisteria-clad return verandah, the stylish interior over two levels features pastel tones and beautiful high-end floral wallpapers complemented by sympathetically renovated and extended informal living areas providing flexible family spaces. The accommodation includes a Baltic Pine, timber fretwork arched hallway flowing to two upstairs bedrooms, main with built-in robes and a period-styled ensuite, powder room and laundry; two further bedrooms are located on the lower level alongside a pristine family bathroom and second informal living room/retreat. An expansive family living and dining room has an adjacent study and incorporates a stylish granite and Euro kitchen leading to a deck and lower level paved outdoor entertaining area. Providing options for outdoor relaxation and alfresco living overlooking a deep rear garden with a garage that can also be used as a multi-function room, studio with ample loft storage and access to the park. Other comprehensive features include alarm, OFPs, ducted heating and evaporative cooling, under house storage & cellar, the original iron stove features in one bedroom and two underground water tanks (10,000 ltrs each).
The late 1890s were renowned for homes of gracious elegance and this is no exception. Furthermore, it is enhanced by a convenient location within a few minutes walking distance of local cafes & the kindergarten, close to Middle Camberwell shops or Surrey Hills Village, an array of sought-after schools, Riversdale Road tram or Warrigal Road bus services and Maling Road is only minutes away - all adding to its sought-after lifestyle benefits.
Enquire about this property
Request Appraisal
Welcome to Surrey Hills 3127
Median House Price
$2,300,250
2 Bedrooms
$1,418,334
3 Bedrooms
$1,936,666
4 Bedrooms
$2,382,500
5 Bedrooms+
$3,223,333
Surrey Hills, a prestigious suburb located approximately 11 kilometres east of Melbourne’s CBD, epitomises gracious living with its leafy streets, heritage homes, and a strong sense of community.





















