Sold259 Montague Street, South Melbourne
Sunlit and Spacious Victorian Beauty
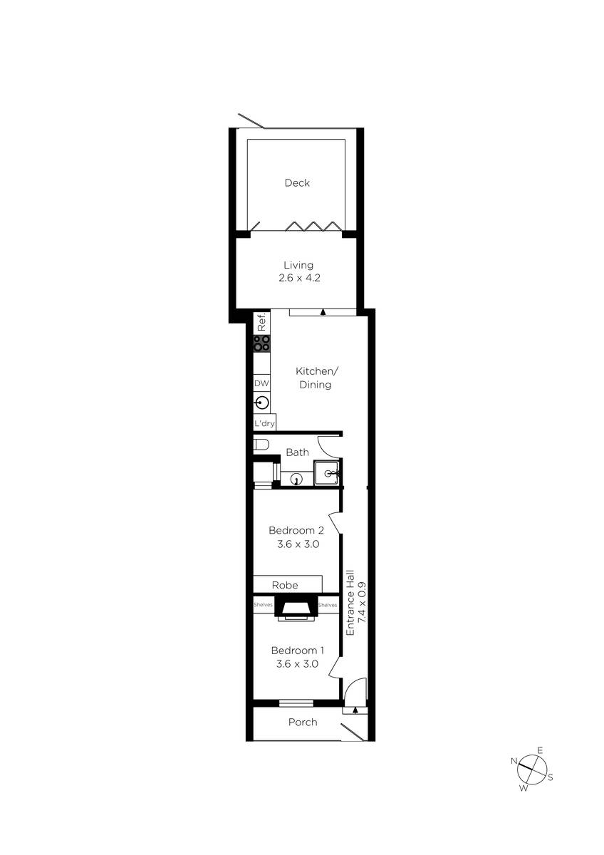
Captivating Victorian charm merges flawlessly with light-filled modern spaces in this delightful two-bedroom single-fronted home, where the unbeatable location and leafy setting will inspire a life of ease. Connected to its private surroundings through bi-fold doors, this home's desirable open-plan living and dining domain basks in the warmth of the afternoon sun, promoting relaxation and entertainment in equal measure.
Contemporary functionality contrasts with the retained period beauty throughout the sleek kitchen with stainless steel cooking appliances, a dishwasher and plenty of storage, with soaring high-set ceilings capturing the exquisite sunlight. The two spacious bedrooms along the ornate corbel-arched hallway provide generous space and built-in storage, catered to by the central bathroom, a European laundry and ducted heating.
With everything you need within reach, this prime location zoned for Albert Park College and Primary School unlocks the opportunity of some of the area's best restaurants, transport options and brunch spots, including Albert Park Village and Clarendon Street shopping and dining, South Melbourne Market, MSAC, and the ease of city-bound trams.
Enquire about this property
Request Appraisal
Welcome to South Melbourne 3205
Median House Price
$1,700,000
2 Bedrooms
$1,252,500
3 Bedrooms
$1,905,000
4 Bedrooms
$2,767,500
South Melbourne, situated just 2 kilometres from the heart of Melbourne’s CBD, is a vibrant and historic suburb known for its unique blend of cultural heritage, contemporary living, and dynamic community atmosphere.
















