Sold25 Rusden Street, Brighton
'Moyarra' - Family Haven in a Central Location
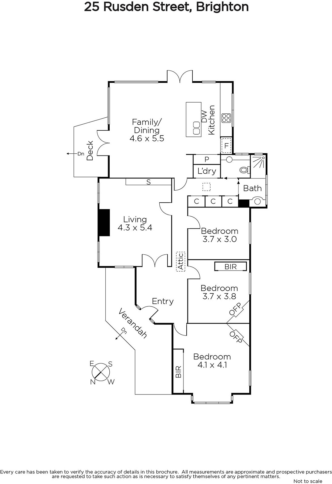
Positioned in a prime location, this refined single-level home has been updated and extended offering space, quality and the promise of a convenient Bayside lifestyle. Well-maintained and perfect for families, a wide entrance introduces magnificent Edwardian details, double-glazed windows and original Baltic Pine floors that flow throughout to leave a lasting impression. This exceptional residence comprises three bedrooms of generous proportions, including a master bedroom with built-in wardrobe, a large family room and a newly renovated and sun-filled open-plan kitchen and dining area with Spotted Gum floorboards, stone bench tops, Bosch dishwasher, Smeg oven and Ariston stovetop. The formal living zone includes built-in custom-made Jarrah fixed-shelving and cabinetry, allowing the space to be used as an office/lounge or a formal dining area. Along with a flexible layout for family living is a bathroom with walk-in shower and heated towel-rail, separate powder room, well-appointed laundry and ample storage including attic space. Outdoors is a private and paved sanctuary with an easily maintained garden and timber decking perfect for entertaining. Additional features include parking for two, eco-friendly rain water tanks and a captivating façade with charming picket fencing. In close proximity to trains and trams, cafes, shops, the wide-open spaces of Elsternwick Park and an easy walk to the beach, this residence is a rare opportunity to tick all the boxes of a truly ideal family home.










