For Sale25 Fakenham Road, Ashburton
Contemporary Living in Captivating Surrounds
Auction
Inspections
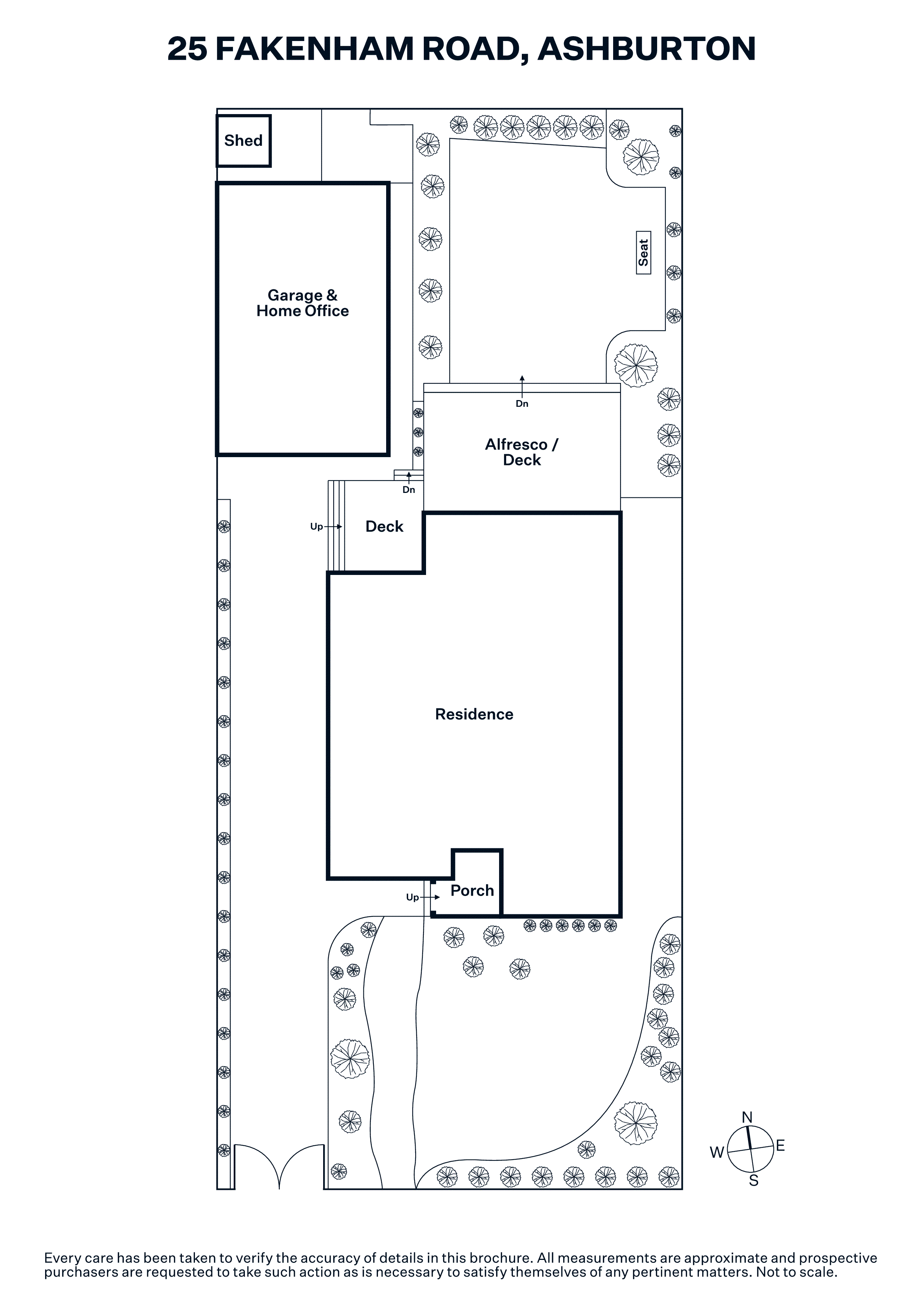
Beautifully nestled within a stunning landscaped garden oasis, this turnkey single-level solid brick residence impressively blends classic charm with superb contemporary style.
Polished timber floors throughout combine with high feature ceilings in the wide entrance hall, generous living room, main bedroom with robes and designer ensuite, two additional double bedrooms with robes and a stylish family bathroom with freestanding bath. The gourmet kitchen appointed with stone benches flows through to the light-filled dining and family room where large picture windows provide a sensational outlook over the garden. A spacious studio provides versatility as a home office or retreat. The expansive vine-covered deck offers wonderful al fresco dining overlooking a lush, leafy, and entirely private north-facing garden.
In a highly sought after location just moments to Ashburton Village and station, great schools, Ashburton Park and the aquatic centre, the property includes low-maintenance garden, double-glazed windows, ducted heating, evaporative cooling, powder-room, Euro-laundry, ducted vacuum, garden shed, double lock-up garage, air-conditioned home office/retreat and auto gate. Land size: 611sqm approx.
Enquire about this property
Request Appraisal
Welcome to Ashburton 3147
Median House Price
$1,919,296
3 Bedrooms
$1,586,333
4 Bedrooms
$2,060,833
5 Bedrooms+
$2,430,000
Ashburton, situated about 12 kilometres southeast of Melbourne's CBD, is a suburb that seamlessly merges its historical origins with modern living and a dynamic real estate market.




















