Sold24B Wembley Avenue, Cheltenham
Exceptional Designer Style
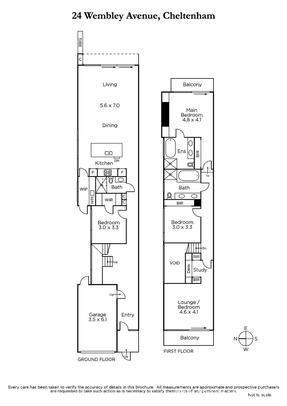
Behind a sleek architectural exterior this impressive contemporary masterpiece, envisioned by renowned architecture practice Poetica, delivers an impeccable family home containing a series of light filled living spaces in a beautifully landscaped, easily maintained setting. Grand proportions, warm timber floors and huge expanses of glass complement generous accommodation featuring three or four bedrooms, the fourth currently arranged as an inviting first floor retreat with gorgeous study nook. A welcoming entrance vestibule serves as the fitting introduction to a wide hallway flowing through to the highlight open plan living zone, and a beautifully equipped kitchen comes complete with a gorgeous Caesarstone central island, a suite of Miele appliances and an adjacent butler's pantry and laundry. The main bedroom features a luxuriously appointed ensuite, while a choice of first or ground floor central bathrooms adds additional flexibility. Gorgeous leafy outlooks punctuate throughout, and hydronic heating, air conditioning, a stylish timber and stone material palette are supplemented by excellent external storage, gas plumbed barbecue, built in garden bench seating and firepit and an integral garage with internal access and parking. A brilliant family-oriented location puts Victoria Golf Club at the end of the street, Cheltenham or Southland stations, Cheltenham Park, Cheltenham Primary School, as well as an array of shops, cafes, restaurants in thriving Cheltenham Village just minutes away.
Enquire about this property
Request Appraisal
Welcome to Cheltenham 3192
Median House Price
$1,285,500
2 Bedrooms
$1,100,000
3 Bedrooms
$1,189,250
4 Bedrooms
$1,422,125
5 Bedrooms+
$1,470,625
Cheltenham, about 19 kilometres southeast of Melbourne's CBD, is a vibrant suburb known for its family-friendly atmosphere and diverse real estate offerings.
















