Sold24 Prospect Hill Road, Camberwell
AUCTION this Saturday 18th Feb at 2.30pm
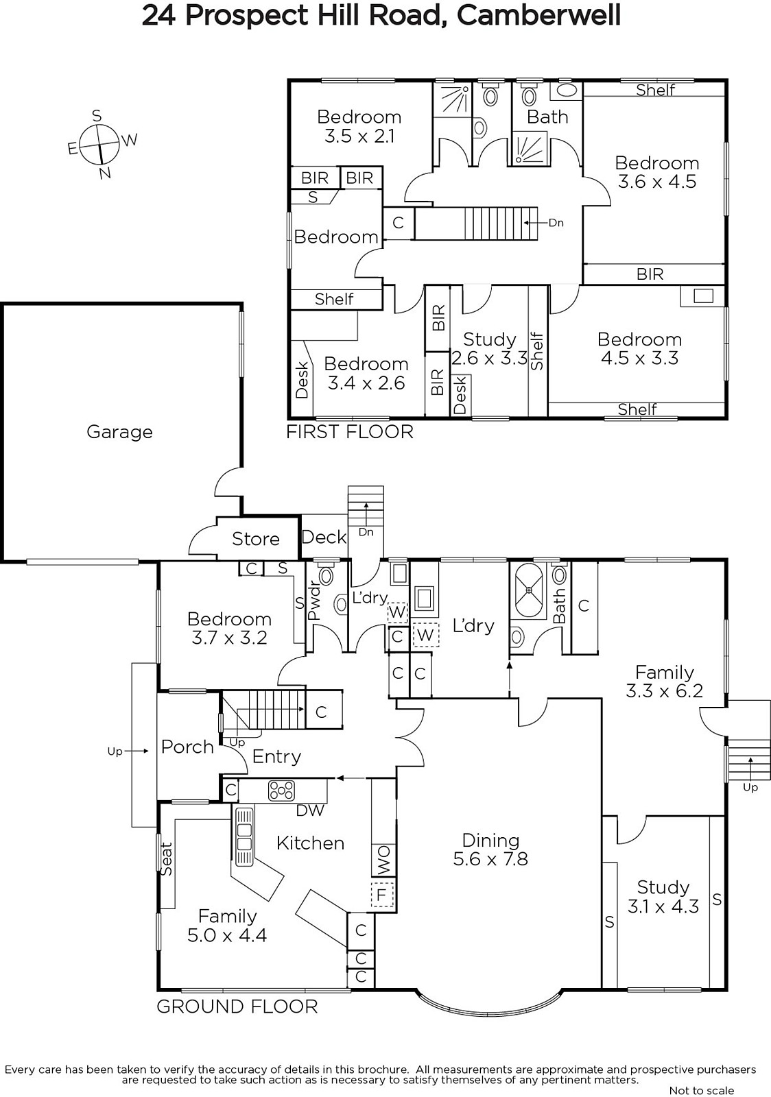
Boasting a highly-sought after position just a short stroll from popular Camberwell Junction shopping, restaurants and transport options, this tremendous development or renovators delight awaits (STCA) with a 21.09m frontage by 30.44m depth (647sqm) approx. Ideal for new family home, subdivision or renovation of the existing 1960s two-storey clinker brick dwelling which presents in suitable condition for discerning investors and comprises 6 bedrooms, 3 flexible living/study rooms, large lounge/dining room adjacent to functional timber kitchen with open plan meal area, 2 bathrooms, 1 shower room & two powder rooms, laundry and DLUG with storage room. The enviable location also enjoys easy access to a host of amenities such as Rivoli Cinema, several parks and sporting grounds, Melbourne CBD and some of Melbourne's finest schools.
Enquire about this property
Request Appraisal
Welcome to Camberwell 3124
Median House Price
$2,608,000
2 Bedrooms
$1,530,000
3 Bedrooms
$2,225,000
4 Bedrooms
$2,604,000
5 Bedrooms+
$3,865,000
Camberwell, located just 9 kilometres east of Melbourne's CBD, stands out as a prominent suburb in the real estate market, renowned for its scenic, tree-lined streets and heritage-rich architecture.













