Sold24 Percy Street, Hawthorn
Renovated Victorian, Prime Location
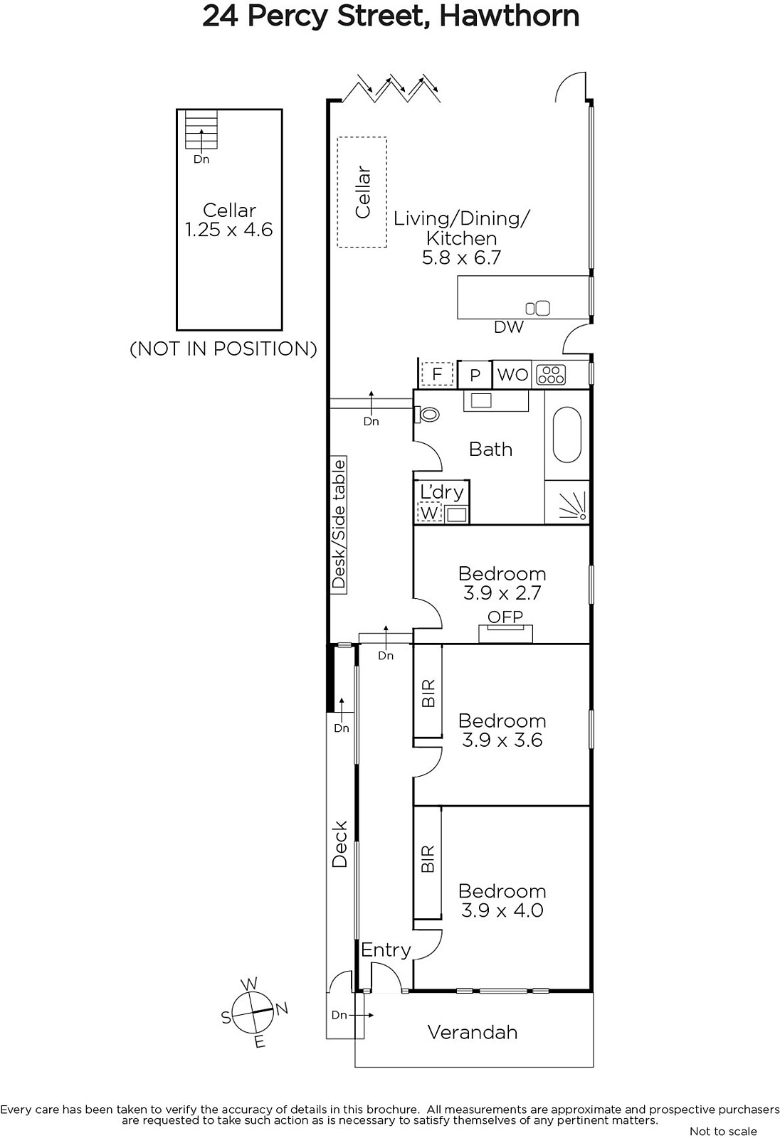
Behind a picturesque picket fence in a quiet street close to Glenferrie Rd shopping precinct this pretty c1890 Victorian presents the very best of period style combined with a stunning contemporary renovation. Period features such as iron lace verandah, sash windows, ceiling roses and polished timber floors set the scene and a traditional style entrance hallway introduces three generous bedrooms and a spacious luxuriously appointed bathroom with underfloor heating and Euro laundry. Attention to attracting and maximising natural light throughout with feature windows as well as skylights with electronic blinds. The large open plan family room is perfect for entertaining or relaxed family living, and features an imported Italian designer kitchen, Corian benchtops, an array of Miele appliances. Frameless bifold doors open to a private landscaped garden complete with electronic retractable awning. Additional benefits include security system, underground wine cellar which can easily accommodate 500 plus bottles, rear off street parking and a superb lifestyle location moments from public and private schools, local parks, only a short walk to Glenferrie, Auburn stations and Glenferrie Road trams.












