Sold24 Munro Street, Hawthorn East
Untapped Potential in Blue Chip Location
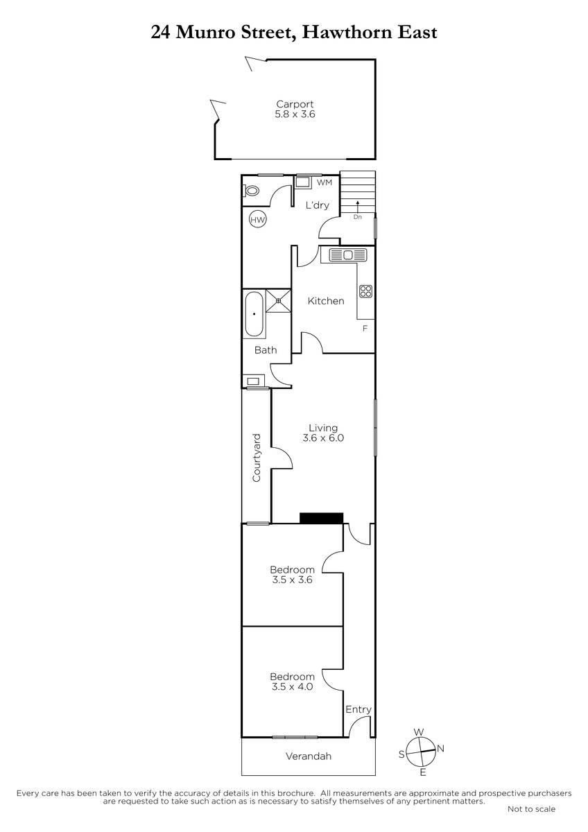
A brilliant parkside location puts every sought-after convenience within easy reach, establishing the foundation for a considerable lifestyle opportunity within this traditional home. Neatly nestled on an attractive street, great potential for renovation exists, redesigning and reimagining its refined character, creating a contemporary inspired residence complete with indoor outdoor living and every luxury appointment, making the most of its westerly orientation (STCA). Existing accommodation includes two bedrooms, bathroom, laundry, living room and a kitchen and dining room, while a rear laneway provides vehi-cle access and a carport. A sensational location positions a choice of acclaimed eateries, brilliant retail options and easy transport links in every direction. Zoned for Auburn High and Auburn Primary schools, walk to beautiful Fritsch Holzer Park, as well as Camberwell Junction, Rivoli Cinema, Auburn Village, Swinburne University and vibrant Glenferrie Road.
Enquire about this property
Request Appraisal
Welcome to Hawthorn East 3123
Median House Price
$2,536,750
2 Bedrooms
$1,525,750
3 Bedrooms
$2,093,750
4 Bedrooms
$2,985,000
5 Bedrooms+
$3,822,500
Situated 7 kilometres east of Melbourne's centre, Hawthorn East offers a coveted mixture of greenery, historic charm, and modern amenities that cater to a wide range of preferences and lifestyles.















