Sold234A Swan Street, Richmond
City Oasis - Foodie Paradise
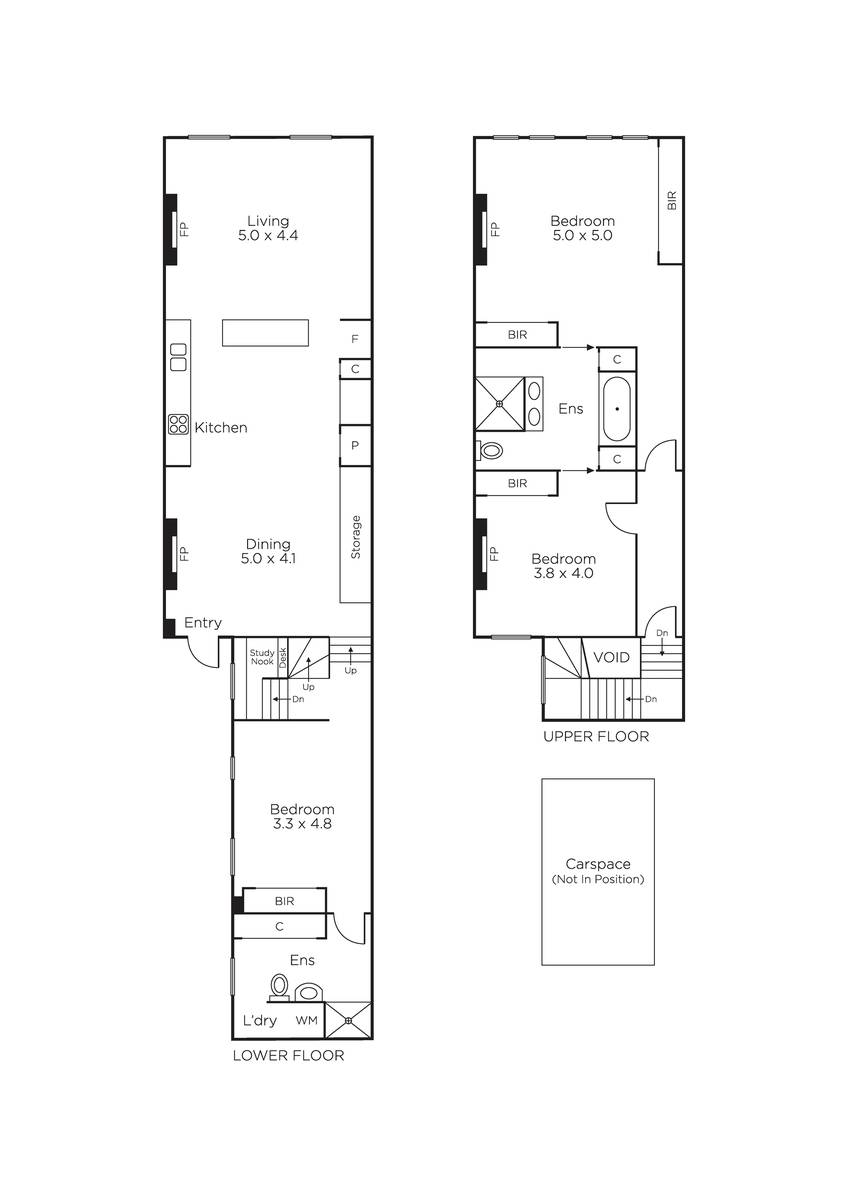
Quietly perched above vibrant Swan Street, this architecturally designed, two level brick residence c1898, offers the opportunity to live in grand Victorian style but be just steps away from the pulse of inner city amenities. The modern renovation blends seamlessly with the stunning period details on just over 150sqm (approx.) of European style living, perfect for a city pad or solid investment.
Soaring 14-foot ceilings and large north-facing windows bring light and views into the open plan living areas, which are flanked by two Calcutta marble gas fireplaces. The kitchen has striking Poliform cabinetry, Miele appliances, a moveable kitchen bench and myriad storage options. The three large bedrooms with built-in robes and two stylish bathrooms are complemented by a private study nook for work at home convenience. Additional insulation was added to the floor and walls to ensure a quiet and energy efficient environment. The video gate intercom system provides security and reverse cycle heating and cooling system ensures year-round comfort. The title also boasts a rare off street car park on title as well as permits for local parking.
With Richmond Hill views across Swan Street and beyond, the former David's Champagne Factory building is within walking distance of many of Melbourne's leading attractions including Rod Laver Arena, AAMI Park, East Richmond train station, Coles, and the MCG. It is just metres from many of Richmond's finest eateries and lies just 4km from the Melbourne city centre and 30km from Melbourne International Airport.
NB: Entrance from Shakespeare Place at rear of Swan Street
Enquire about this property
Request Appraisal
Welcome to Richmond 3121
Median House Price
$1,387,500
2 Bedrooms
$1,236,375
3 Bedrooms
$1,550,000
4 Bedrooms
$2,140,500
Richmond is approximately 3 kilometres southeast of Melbourne's CBD, making it a conveniently located suburb for those looking to enjoy close proximity to the city's core while living in a vibrant community setting.



















