Sold23 Elgin Street, Hawthorn
Edwardian Charm, Enviable Location
Inspections By Private Appointment. On-site Auction Saturday at 1.30 pm. Open from 1.00 pm for private viewings. Please contact Nick or Stuart to arrange a time.
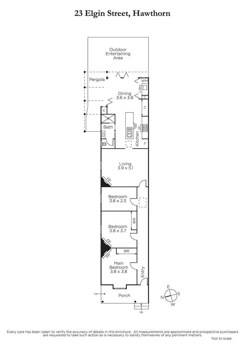
The instant appeal of this stunning solid brick Edwardian residence's impressively renovated single level dimensions is confirmed by its enticing blend of period charm and inspired contemporary design.
Dark Baltic pine floors flow through the wide hall to two beautiful bedrooms with fireplaces, robes and plantation shutters, a third bedroom or home office and a stylish bathroom. The gracious living room with an open fire introduces a sublime gourmet kitchen boasting white stone benches and a 90cm Smeg oven and an inviting dining area. Beneath vaulted ceilings and with dark timber floors underfoot, the open plan room opens fully through bi-fold doors to a leafy private northeast garden shaded by majestic Birch trees.
Enjoying a coveted location close to West Hawthorn Village, Hawthorn station, Church St trams, St James Park and elite schools, it includes ducted heating, RC/air-conditioning, Euro-laundry and irrigation.
Enquire about this property
Request Appraisal
Welcome to Hawthorn 3122
Median House Price
$2,981,250
2 Bedrooms
$1,677,500
3 Bedrooms
$2,147,500
4 Bedrooms
$3,550,000
5 Bedrooms+
$6,271,425
Hawthorn, approximately 6 kilometres east of Melbourne’s CBD, is an affluent and vibrant suburb known for its rich history, beautiful parks, and prestigious educational institutions.















