Sold22 Stewart Street, Hawthorn East
Renovated Victorian in a Period Streetscape
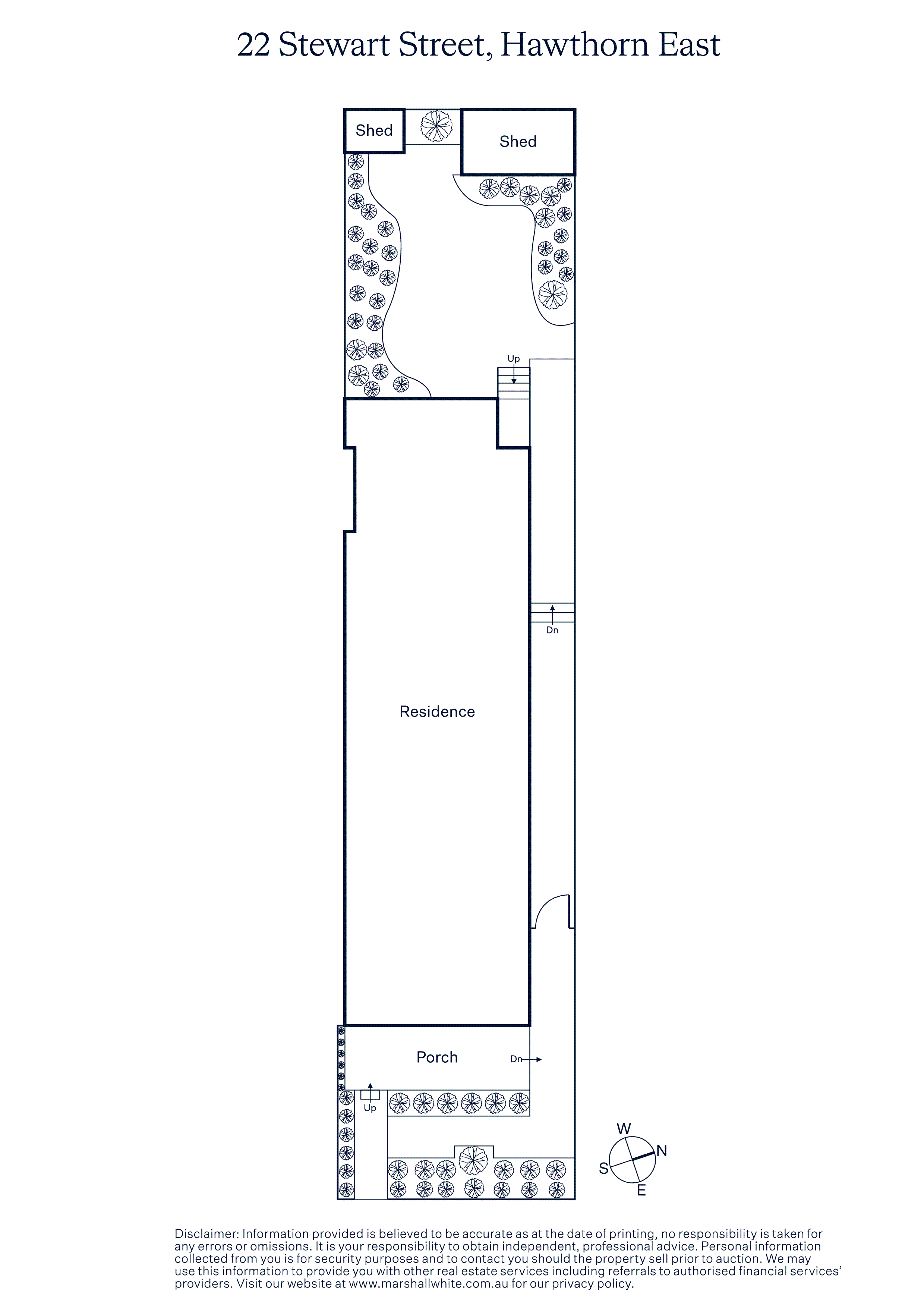
Introduced by a leafy front garden and classic Hawthorn Brick façade this instantly appealing single-fronted Victorian cottage is perfectly situated amongst other period homes in one of Hawthorn East’s best kept secret locations between the eclectic Auburn Village and Burke Road.
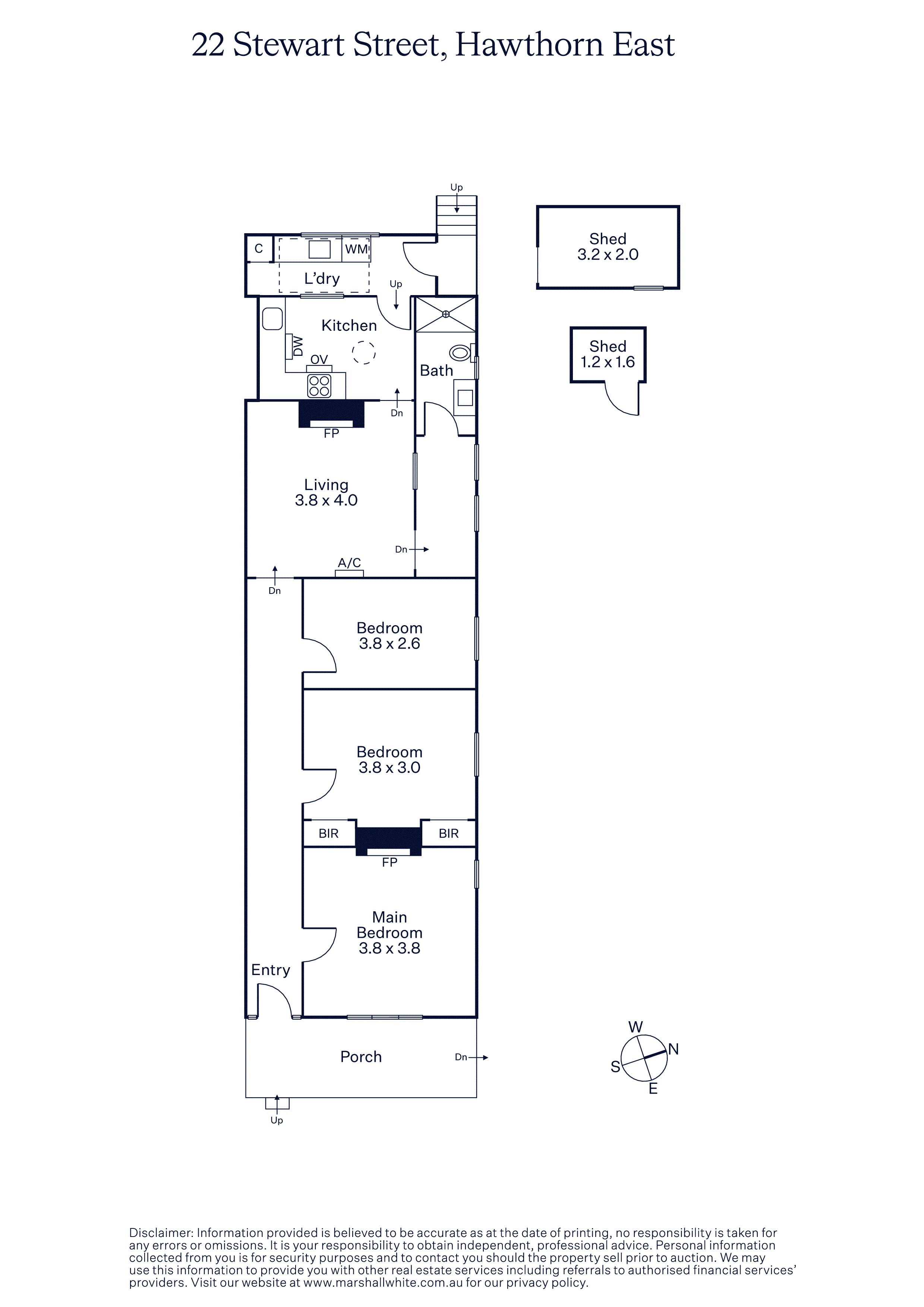
It has recently been renovated and extended retaining its period-faithful features including an iron lacework verandah and high ceilings with roses and cornices whilst updating the interior which benefits from a northern side aspect. A polished timber, arched hallway is flanked by three carpeted bedrooms or two plus a study/home office, the main has an OFP and the second bedroom has built-in robes. Leading through a central living room with cosy OFP to a pristine new fully-tiled bathroom plus a stylish kitchen equipped with stone bench tops, Bosch and Whirlpool stainless steel appliances and an adjacent laundry. Flowing to a leafy rear garden which provides a tranquil oasis for outdoor relaxation or entertaining friends and family. Other features include ducted heating, R/C air conditioner (living room), quality fixtures and fittings and low-maintenance gardens with garden storage and workshop.
This attractive Victorian home is ideally located minutes from Glenferrie Road or Camberwell Junction shopping, cafes, restaurants and cinemas; also walking distance to Sir William Angliss or Rathmines Road Reserves and public transport options. Whilst many of Melbourne’s finest schools as well as Swinburne University are also within walking distance - all underpinning its convenient lifestyle credentials.
Enquire about this property
Request Appraisal
Welcome to Hawthorn East 3123
Median House Price
$2,536,750
2 Bedrooms
$1,525,750
3 Bedrooms
$2,093,750
4 Bedrooms
$2,985,000
5 Bedrooms+
$3,822,500
Situated 7 kilometres east of Melbourne's centre, Hawthorn East offers a coveted mixture of greenery, historic charm, and modern amenities that cater to a wide range of preferences and lifestyles.



















