Sold21a King Street, Camberwell
Stylishly Renovated Edwardian in Lifestyle Location
Recent renovations have transformed this pretty Edwardian period home c1910 into a superbly stylish family home over two levels with a preferred northern rear aspect; perfect for young professionals, families or retirees scaling down to something easily manageable and surrounded by quality real estate.
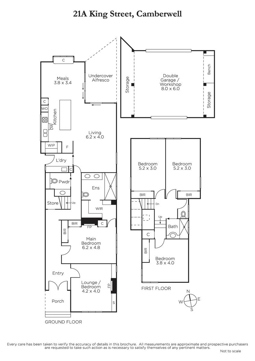
A renovated interior designed in consultation with award-winning Heartly Interior Design with subtle period attributes retained creates an immediate impact with wide engineered American oak floors flowing through the hallway opening to a formal sitting room/5th bedroom, downstairs main bedroom with BIRS, WIR and a fully-tiled ensuite, powder room and laundry with stone bench-tops through to a generous, light and bright open plan family living area incorporating a sleek kitchen equipped with a WIP, stone bench-tops and prestige Miele stainless steel appliances, including an induction cooktop and double steam and pyrolytic ovens. Opening through floor-to-ceiling sliding doors to a covered deck with overhead fan and heater and a north-facing garden lined with ornamental trees - perfect for year-round relaxing and entertaining family or friends. A staircase with a sky window leads to three double bedrooms all with BIRs plus a pristine family bathroom. Other comprehensive features of this very desirable home include ducted heating and refrigerated cooling, R/C air conditioners (main bedroom and living), easy care gardens, 3,200 ltr water tank, large remote double garage plus workshop and storage with rear lane access.
Enhanced by an outstanding location in a quiet and leafy pocket of Camberwell, within walking distance of the Junction shopping, cafes, bars, restaurants and the Rivoli Cinema or the market; with easy access to the CBD via CityLink, trams or Camberwell train station and transport to many of Melbourne's finest schools including a few minutes' walk from the popular Camberwell Primary - all underpinning its sought-after lifestyle location.




















