Sold211 Union Road, Surrey Hills
Gracious Period Home With Potential
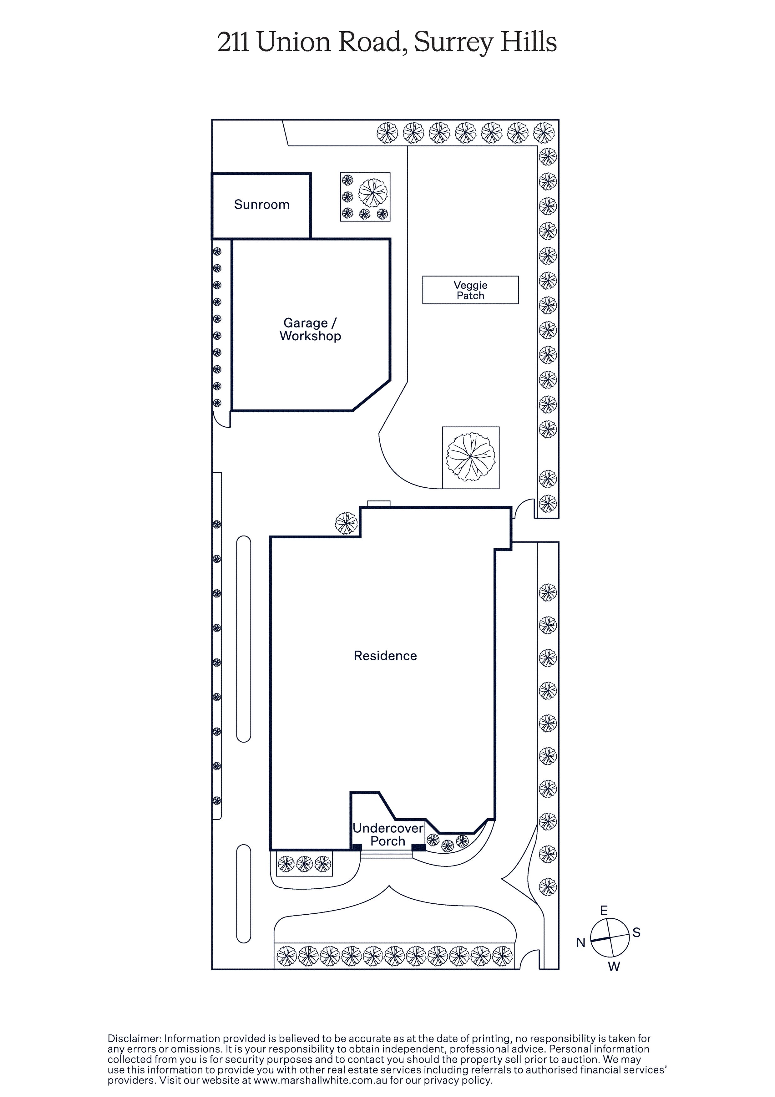
Originally designed by Harry Norris, a renowned Australian Architect in the 1920’s and 1930s - this impressively solid triple brick family home displays both character typical of its era and features not widely seen in homes built in that period. Quietly nestled in established garden surrounds, behind a magnificent high, sound deadening hedge which together with its construction contributes to a private and peaceful living environment inside. Perfectly suitable for a family to move in and enjoy immediately, it also presents an excellent opportunity for renovators with vision to utilise the Council approved plans for a significant extension; reconfiguring the home to match today’s family lifestyles.
The spacious home features lovely leadlight windows and leadlight panelled doors, high ceilings, polished hardwood floors and a rarely seen octagonal entrance hall. Leading to a light-filled interior with the flexibility of two living areas and one with dining, three bedrooms, and a rear main with a WIR and ensuite plus a dual access period-style bathroom. A modern well-equipped kitchen/meals has a Westinghouse stove, AEG stainless steel dishwasher and adjacent laundry opening to a deep rear garden with an external study or home office. Other features include ducted heating, potting shed, water tanks and an original double garage with home mechanic’s pit, workshop and storeroom.
This appealing family home also benefits from its proximity to Whitehorse Road shopping precincts, the ever popular Surrey Hills and Mont Albert Villages or the historic Maling Road, shops and cafes. With easy access to many of the area’s finest public and private schools, parklands and transport options including the new Union Station - all delivering the sought-after family lifestyle benefits attributed to this area.
Enquire about this property
Request Appraisal
Welcome to Surrey Hills 3127
Median House Price
$2,300,250
2 Bedrooms
$1,418,334
3 Bedrooms
$1,936,666
4 Bedrooms
$2,382,500
5 Bedrooms+
$3,223,333
Surrey Hills, a prestigious suburb located approximately 11 kilometres east of Melbourne’s CBD, epitomises gracious living with its leafy streets, heritage homes, and a strong sense of community.
















