Sold21 Parring Road, Balwyn
Auction This Saturday 3.30pm. Final Inspections Thursday 12.30-1.00pm & Saturday from 3.00pm
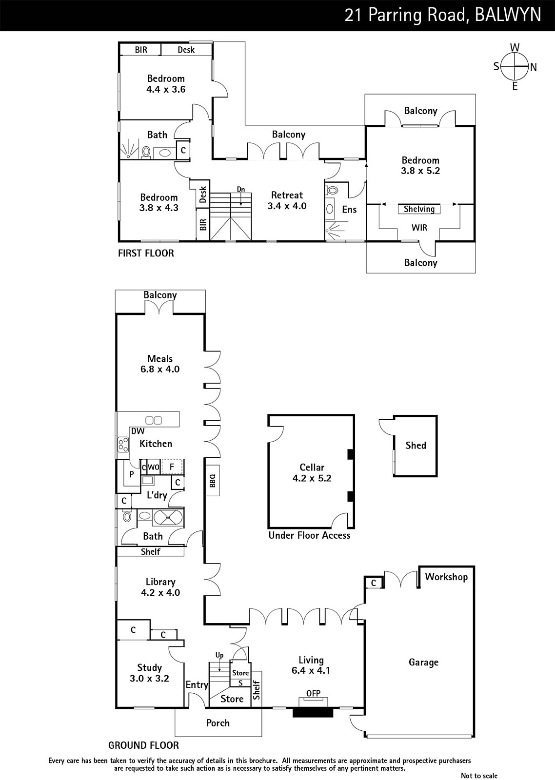
Capturing spectacular city views from Balwyn's highest point, this unique mud brick residence's charm, light-filled allure and stunning garden and pool setting provide an idyllic family lifestyle in a tranquil cul-de-sac culminating in Maranoa Gardens and Beckett Park. In the Balwyn High zone, it offers easy access to other excellent schools, Balwyn Village, trams and Chatham station. Designed around a central garden and pool, rustic timber and tactile mud brick walls add wonderful character to the entrance hall, inviting living room with open fireplace, cosy library, timber kitchen boasting stainless steel appliances and a dining area commanding city views. All the living spaces open to the north/west-facing private leafy garden with built in al fresco dining area and gas/solar heated pool and spa. Enjoying sensational city views, the main bedroom with designer en-suite, walk in robe and front and rear balconies is accompanied by two additional bedrooms with built in robes, a retreat, two stylish bathrooms and a study/4th bedroom (BIR). Whilst immediately very comfortable, the home offers scope for further enhancement, or possible new home site (STCA). Includes ducted heating and cooling, plantation shutters, laundry, double garage, work-shop and wine cellar. Land 800sqm approx.
Enquire about this property
Request Appraisal
Welcome to Balwyn 3103
Median House Price
$2,993,333
2 Bedrooms
$833,333
3 Bedrooms
$2,590,333
4 Bedrooms
$2,844,967
5 Bedrooms+
$3,719,166
Balwyn, located about 10 kilometres east of Melbourne's CBD, is a suburb within the City of Boroondara known for its picturesque streets, grand Edwardian and Georgian homes, and high-quality lifestyle.














