Sold20 Park Street, St Kilda West
Elegance And Excellence, Memorably Matched
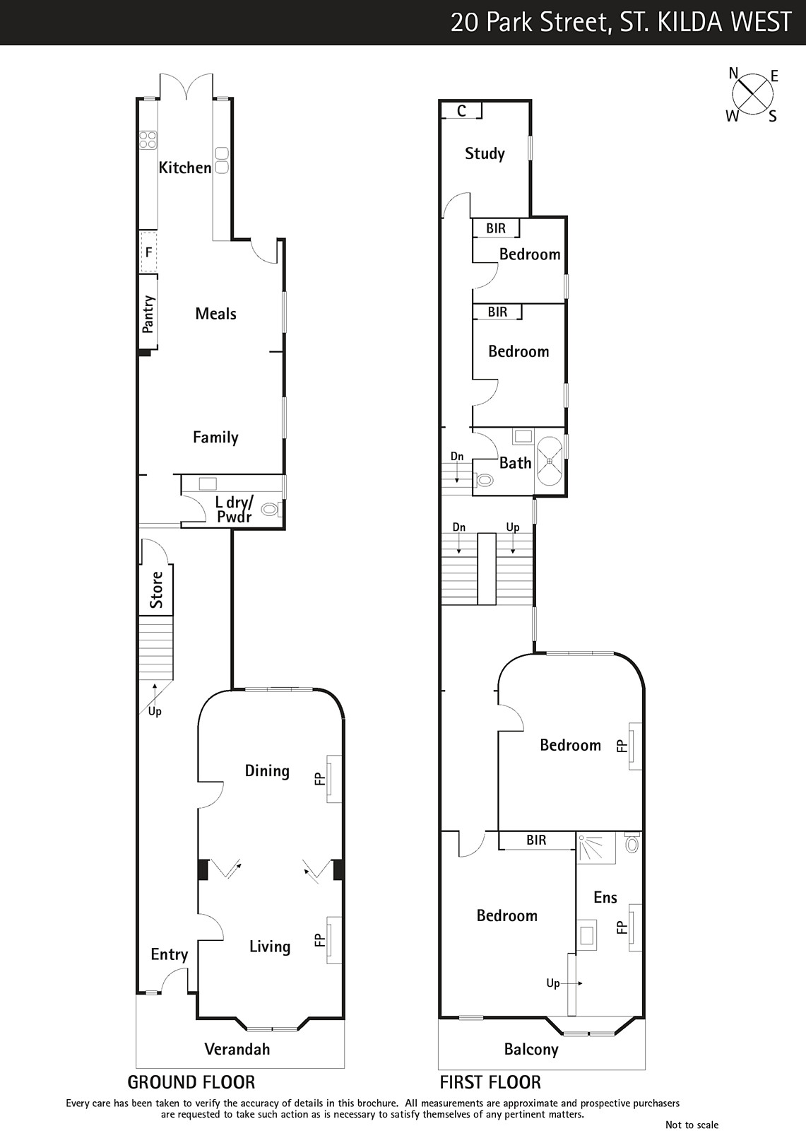
A renovation completed with an assured instinct for matching style to substance and marrying quality to comfort means this classical terrace residence of excellent depth responds beautifully to modern day requirements. A façade that reflects the appeal of the era reveals refined, versatile formal rooms featuring superb marble fire places beneath original high ceilings. Beyond, a central family/meals area links to a kitchen where Corian surfaces and Miele appliances each contribute to the success of the design. The flexibility of up to five bedrooms and two sublime honed blue-stone bathrooms confirm the family credentials of this fabulous Victorian, enhanced by hydronic heating, huge roof-space storage, a north facing rear garden with car parking and brilliant second street frontage to Park Lane. Fitzroy Street, the beach, trams to town - the location tells its own story of success. Land - 278 sqm approx.
Enquire about this property
Request Appraisal
Welcome to St Kilda West 3182
Median House Price
$2,602,500
Nestled along the shores of Port Phillip Bay, St Kilda West is a captivating suburb that seamlessly combines seaside charm with the vibrancy of inner-city living. Characterised by a mix of period homes and modern residences, the suburb exudes a unique coastal sophistication.














