Sold20 Norfolk Place, Malvern
Exclusive Stonnington Estate Town Residence
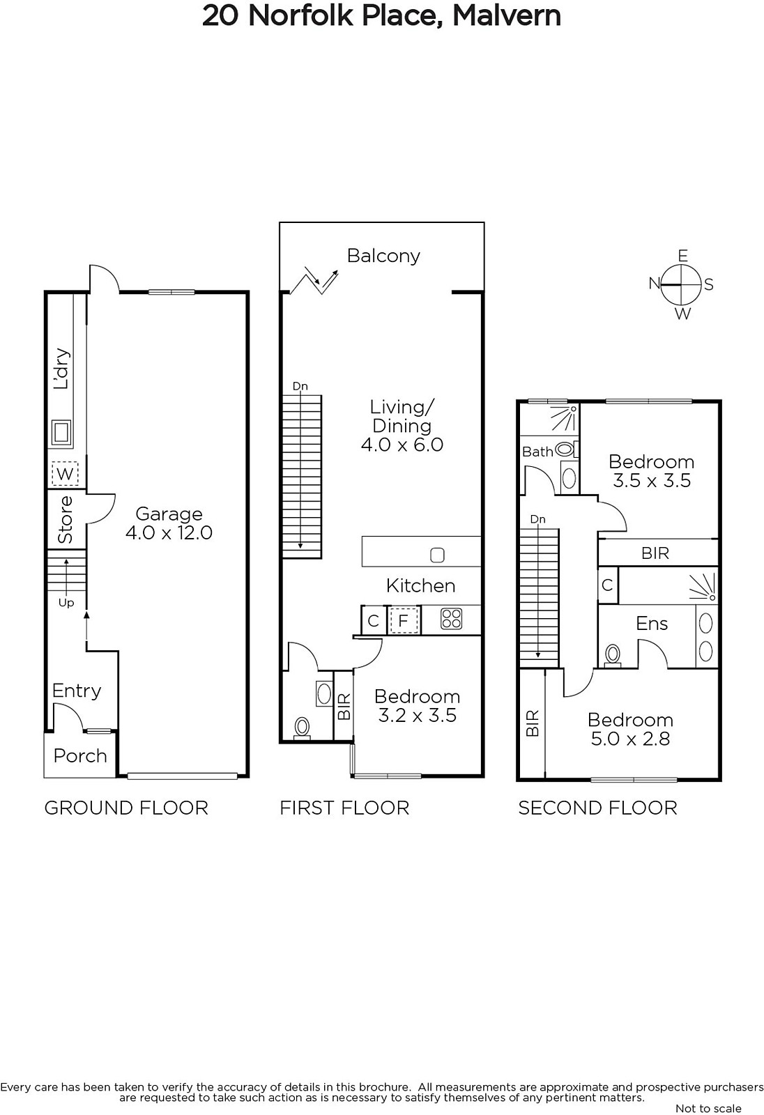
Situated in an exclusive new neighbourhood off prestigious Somers Avenue, within the former grounds of Stonnington Mansion, this striking town residence demonstrates the ease at which this contemporary home caters for modern lifestyle needs. Nestled around the central landscaped mansion, this residence enjoys a leafy park side location. Superbly positioned within walking distance of Menzies Reserve, trams, schools and Glenferrie Road shopping/restaurants, its stylish design and appealing floorplan reveal light filled mid-level living and dining domain accompanied by a stone and Miele appointed kitchen and cafe style bi-fold doors to a covered terrace. Three bedrooms, one on mid-level and two upstairs, include main with en-suite bathroom. Tandem garage has versatility for home office/gym and features laundry, storeroom and access to a ground floor courtyard. Second bathroom, powder room, video intercom and auto garage.








