Sold20 Euston Street, Malvern
Architecturally Striking, Impressively Functional
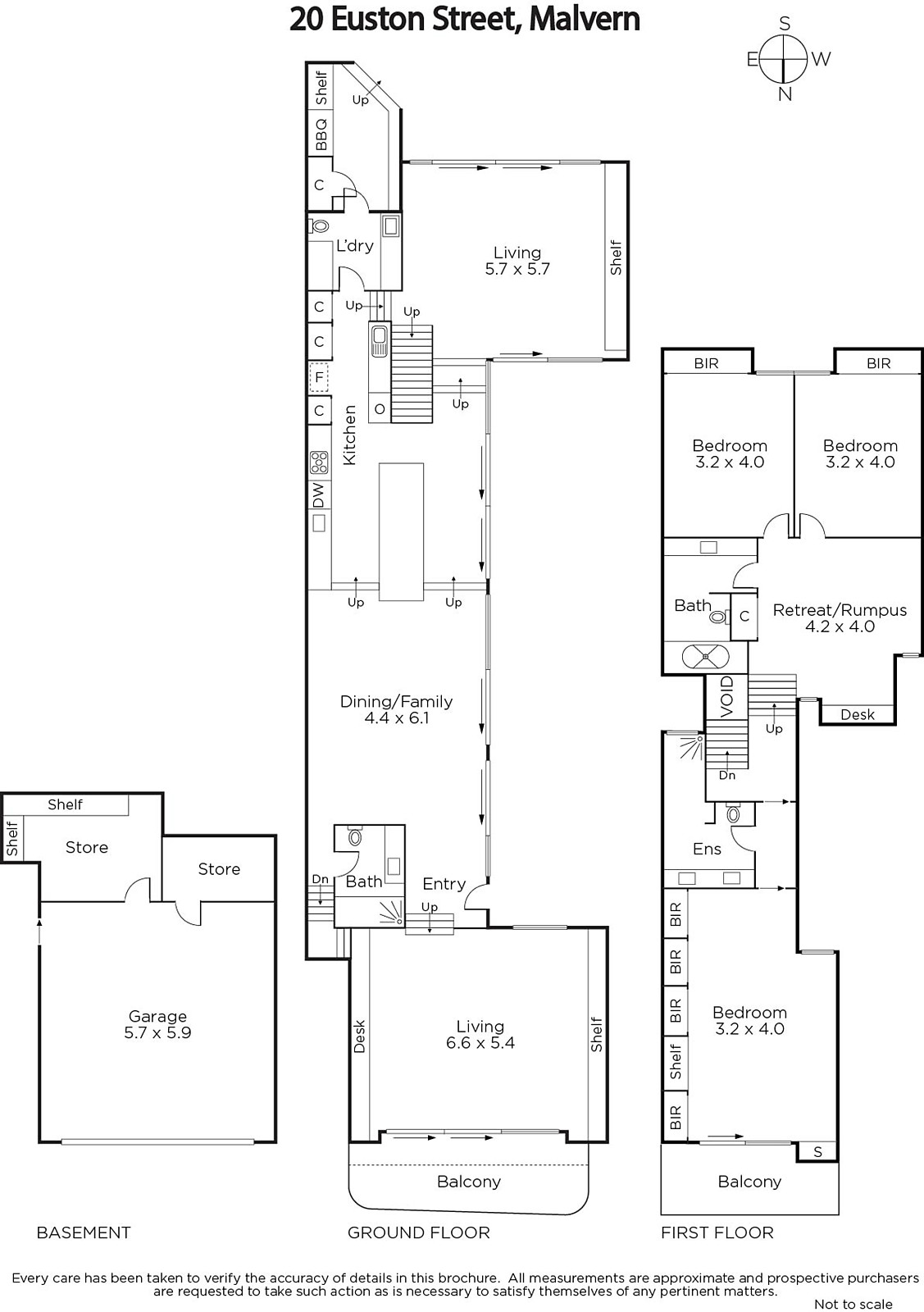
Brilliantly showcasing their award winning architectural talents, this inspired Kennedy Nolan designed contemporary residence delivers every conceivable family requirement with an accomplished sense of style and sophistication.
The striking impact of travertine floors and floor to ceiling glass is softened by customized timber cabinetry and sheer flowing window furnishings. All the generously proportioned living areas wrap around a picturesque northwest-facing heated pool and sun terrace. The fabulous dining area and state of the art Miele kitchen boasting marble and Corian benches and a full butler's pantry are adjacent to both a beautiful sitting room with wide north-facing balcony and a sensational living room opening to the private leafy rear garden. In its own wing, the gorgeous main bedroom features a stunning en-suite, built in robe and private north sun-deck. Two additional double bedrooms with built in robes are accompanied by a retreat with study nook and a stylish bathroom.
Just a short walk to great schools, Malvern Village shops and cafes, trams and parks, this spectacular home also includes RC/air-conditioning, slab heating, alarm, video intercom, 3rd bathroom, 4th toilet, laundry, irrigation, water tank, work-shop, store-room and basement double garage. Land size: 443sqm (approx.)
Enquire about this property
Request Appraisal
Welcome to Malvern 3144
Median House Price
$2,990,083
2 Bedrooms
$2,106,667
3 Bedrooms
$2,454,667
4 Bedrooms
$3,357,084
5 Bedrooms+
$4,654,999
Malvern, located just 8 kilometres southeast of Melbourne's CBD, epitomises suburban sophistication and elegance.
















