Sold20 Cobden Street, South Melbourne
Renovated Two Storey Victorian on the City's Edge
Instantly appealing in both style and lifestyle attributes, this superbly renovated freestanding Victorian residence's stunning combination of period charm and contemporary design creates the perfect inner urban sanctuary just a short stroll to the lake, MSAC, Botanic Gardens, 11 tram routes, the market, Clarendon St shops and schools.
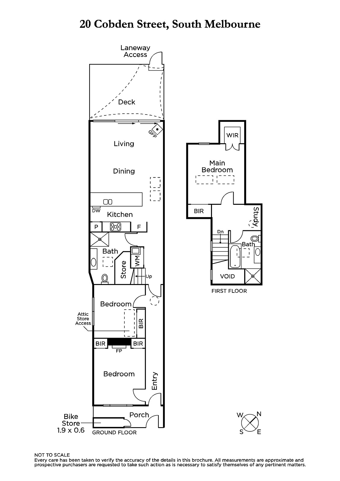
Behind the block-fronted façade, spotted gum floors add a contemporary element to the traditional arched hallway and two gorgeous double bedrooms with built in robes (1 with an open fire) and a stylish bathroom. The generous main bedroom with built in and walk in robes is upstairs alongside a study nook and designer bathroom. Northern light streams through the inviting open plan living and dining room featuring a gas fire and sleek gourmet kitchen appointed with large stone benches, European appliances and soft-closing cabinetry. The living space opens to a private decked north-facing courtyard shaded by a large sail and opening to a right of way.
A picture of perfection, this sensational home also includes an alarm, zoned RC/air-conditioning, Euro-laundry, outdoor heater, ample storage, pull down attic storage and bike box.
Enquire about this property
Request Appraisal
Welcome to South Melbourne 3205
Median House Price
$1,700,000
2 Bedrooms
$1,252,500
3 Bedrooms
$1,905,000
4 Bedrooms
$2,767,500
South Melbourne, situated just 2 kilometres from the heart of Melbourne’s CBD, is a vibrant and historic suburb known for its unique blend of cultural heritage, contemporary living, and dynamic community atmosphere.













