Sold2 Seaview Avenue, Brighton
Beachside Beauty with Bay Panoramas
Panoramic bay views, a sun-drenched north facing alfresco area and a splendid mix of contemporary and period features define this character-filled 4-bedroom family home located in a quiet cul-de-sac opposite Brighton Beach.
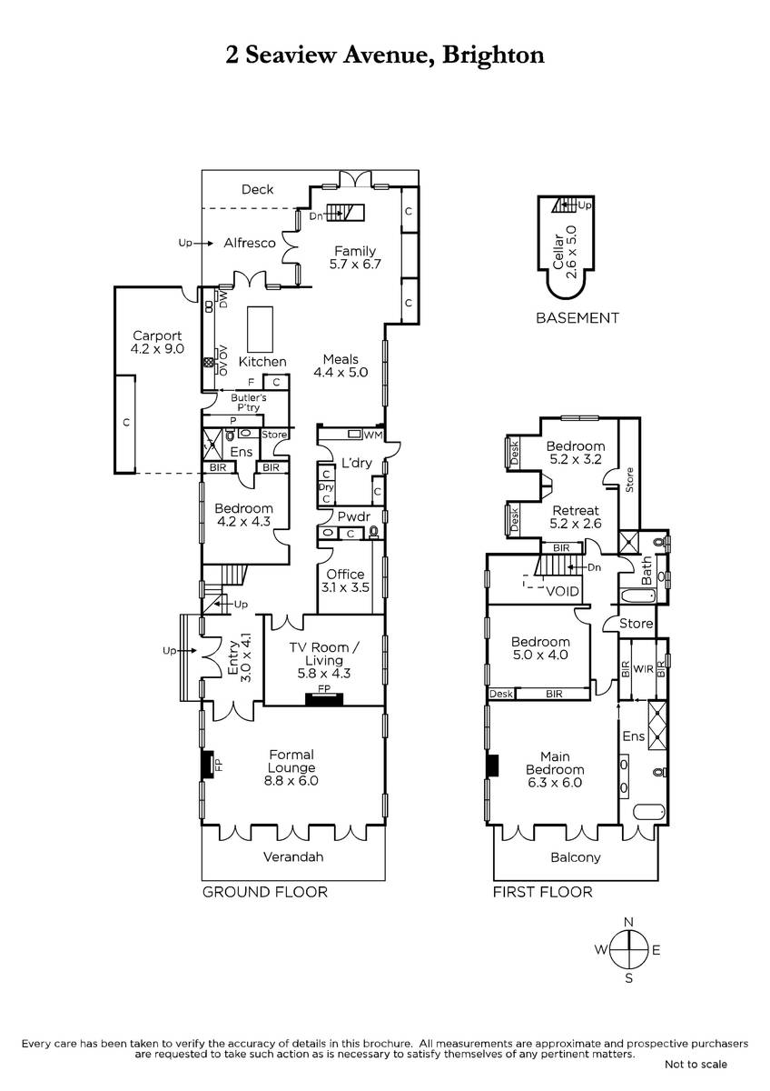
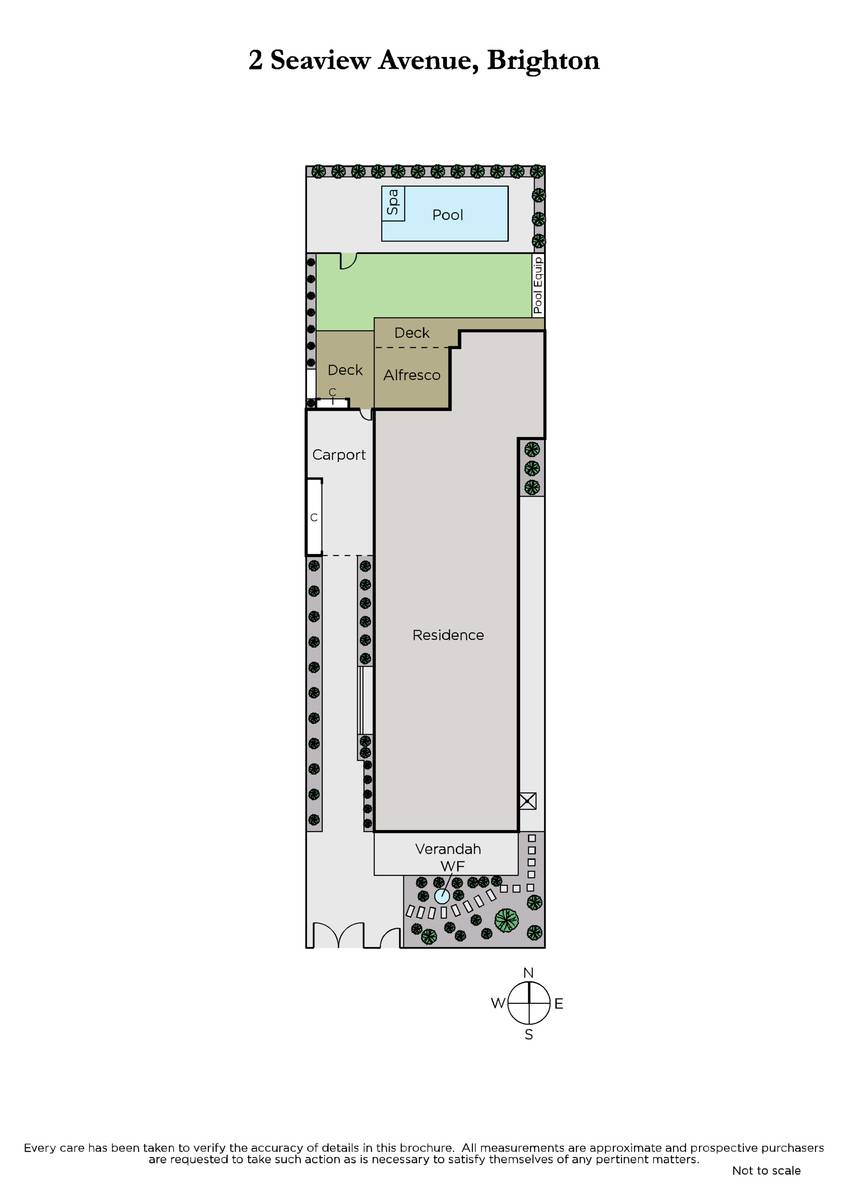
A -two storey Hamptons style extension and renovation, designed by Jo McIntyre of Beautiful Home, perfectly complement the original 1920s residence that celebrates ornate English and Edwardian elements, typical of grand family homes of the era. The stunning entrance showcases the original timber staircase, soaring ceilings with decorative plasterwork and stained-glass windows, features that are evident throughout the original section of the home. Living and entertaining options abound with a formal lounge, TV room/retreat, home office plus a spectacularly spacious and light-filled open-plan zone defined by soaring cathedral ceilings and French doors that open out to the alfresco area, pool and spa. Upstairs, water views are available from every room and are particularly stunning from the main bedroom suite's wide veranda. This spacious retreat has a fully fitted WIR, and ensuite with double-vanity, double shower and free-standing bath facing the bay. Two further oversized bedrooms with BIRS, views, and a family bathroom are upstairs, while the fourth bedroom with BIRs and ensuite is downstairs. The Caesarstone kitchen includes an extra wide island bench, sleek cabinetry and European cooking appliances including a steam oven and induction cook top. There is a spacious butler's pantry, with access to the car port. The gas & solar heated pool and spa is privately set in front of a screen of tall bamboo and the north-facing outdoor alfresco area includes an undercover lounge area and outdoor dining deck. There is a gas log fire in the light-filled Hampton's style front lounge plus hydronic heating and S/S air/con downstairs and evaporative cooling upstairs. Adaptive repurposing of the former swimming pool has resulted in a wine cellar, with enough storage for around 45 dozen bottles. Other noteworthy features include fully fitted laundry/mud room, outdoor shower, pet-friendly yard, car port with plenty of storage for bikes, surfboards and everything an active family living so close to the water would need. Just moments from the sand, an 8-minute walk to Brighton Beach station, close to sports oval, Hampton Street and Church Street shops and schools.
In conjuction with Darms Vendor Advocacy
Enquire about this property
Request Appraisal
Welcome to Brighton 3186
Median House Price
$3,278,333
2 Bedrooms
$2,066,833
3 Bedrooms
$2,509,166
4 Bedrooms
$3,611,666
5 Bedrooms+
$4,742,934
Brighton, located just 11 kilometres southeast of Melbourne CBD, is synonymous with luxury and elegance in the real estate market.

























