Sold2 Parlington Street, Canterbury
Prime Opportunity in Prized Location
Enviably positioned within a prestigious and leafy streetscape, this solid brick pair of c1930's whole floor residences represents an outstanding opportunity as a rewarding addition to any investment portfolio or as a multi-generational lifestyle solution with plenty of scope to renovate and further enhance (STCA).
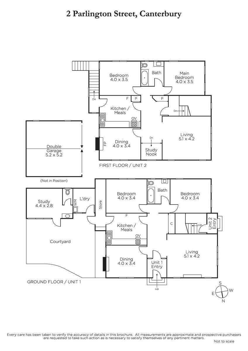
Displaying original period charm, each residence with its own separate entrance comprises gracious living and formal dining rooms served by large capable kitchens. There are also two spacious bedrooms and a bathroom in each dwelling. The deep private northeast garden includes a studio with powder-room and a double garage. In comfortable condition now, both residences would benefit from contemporary refurbishment.
Desirably situated near Camberwell station, Burke Rd shops and restaurants, elite schools, Anniversary bike trail and trams, this is a rare opportunity in a sought-after locale.
Land size: 720sqm(approx.)
Enquire about this property
Request Appraisal
Welcome to Canterbury 3126
Median House Price
$3,753,250
3 Bedrooms
$2,728,666
4 Bedrooms
$3,764,333
5 Bedrooms+
$4,346,667
Canterbury, 10 kilometres east of Melbourne's CBD, radiates exclusivity and prestige. This esteemed suburb is renowned for the picturesque Canterbury Road, lined with majestic trees, and the charming Maling Road shopping village.















