Sold2 Dickens Street, Glen Iris
Family Excellence on an Impressive Scale
Commanding an elevated position well back from the street, this is a classic contemporary residence with timeless elegance, spectacular scale and superb flexibility. It provides an exceptional environment which adapts to every stage of family life.
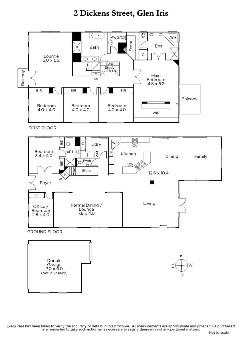
The imposing entrance hall featuring parquetry Jarrah floors creates a sense of occasion as it introduces a gracious formal sitting and dining room and a home office. The palatial open plan living and dining areas and a reading or music room are served by a gourmet kitchen appointed with granite benches and Smeg/Bosch appliances. The dining area opens to a covered deck with water feature ideal for brunching outdoors while the living area extends out to the entirely private garden with a paved terrace and Balinese style pavilion all surrounded by leafy greenery. An abundance of superbly zoned accommodation comprises a ground level bedroom with chic en suite, powder room and built in robe and upstairs, expansive main bedroom with luxurious en suite, dressing room and balcony, three additional bedrooms with robes, a fitted study, spacious retreat with balcony and a third bathroom and a second powder room.
Walking distance to Hartwell station, trams, Leo's Supermarket, Back Creek Reserve, Gardiners Creek Trail and schools, it includes ceiling ducted air-conditioning system and heating, ceiling fans, ducted vacuum, laundry, storage, double garage, auto gates and 3+ additional car-spaces. Land size: 696sqm approx.



















