Sold2 Bruce Street, Malvern East
Home To Some! Land To Others.
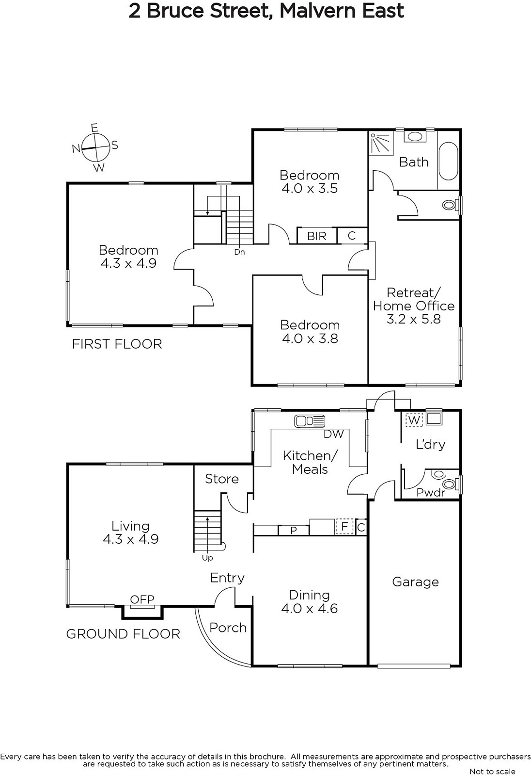
With an impressive frontage of approximately 18.9m, this classic 3 bedroom Art Deco home sited on approximately 693sqm of land offers the ideal home to settle in and enjoy now, or alternatively look to the possibilities to optimise this relatively flat block: to renovate and extend, as a new home site, or consider the development options (STCA).
Current day spaces include traditional living with OFP, separate dining, a fully appointed kitchen/meals with stone bench tops and a separate laundry. Upstairs there are 3 double bedrooms, home office/teenage retreat and a central family bathroom.
Outside, the rear garden ideally caters for family life and enjoyment, featuring a generous sized deck suited for al fresco dining and entertaining. Additional appointments include heating/cooling and lock up garage. Walking distance to The Urban Forest Reserve, East Malvern Station, Chadstone Shopping Centre and local schools.
Enquire about this property
Request Appraisal
Welcome to Malvern East 3145
Median House Price
$2,117,500
2 Bedrooms
$1,504,000
3 Bedrooms
$1,877,666
4 Bedrooms
$2,555,833
5 Bedrooms+
$2,963,333
Situated 12 kilometres southeast of Melbourne’s bustling CBD, Malvern East is a suburb renowned for its blend of family-friendly charm and cosmopolitan living.











