Sold2 Auburn Road, Hawthorn
City View with Options - Redevelop or Renovate
Outstanding city skyline views complement a coveted position near the cream of Melbourne's private schools enjoyed by this captivating Georgian Revival residence, within walking distance of several of Melbourne's finest private schools and Swinburne University; with transport options, parklands, Auburn Village and Glenferrie Road cafes, restaurants and boutiques only moments away.
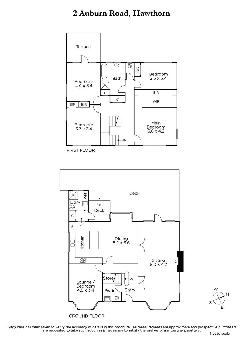
Offering scope to further improve or potential new home site (STCA). Standing behind return driveway on a generous allotment with huge rear entertainment deck overlooking sun-drenched garden, this tastefully enhanced double-storey home represents an exceptional family lifestyle opportunity displaying fine 1950s character, stylish modern comfort and further potential close to Auburn Village. Features four robed bedrooms, two bathrooms and laundry, powder room, lounge room (5th bedroom), delightful living room (open fireplace), family dining area, contemporary kitchen with European appliances, hydronic heating, air-conditioning, polished hardwood floors, terrace views and OSP x 2.
Enquire about this property
Request Appraisal
Welcome to Hawthorn 3122
Median House Price
$2,981,250
2 Bedrooms
$1,677,500
3 Bedrooms
$2,147,500
4 Bedrooms
$3,550,000
5 Bedrooms+
$6,271,425
Hawthorn, approximately 6 kilometres east of Melbourne’s CBD, is an affluent and vibrant suburb known for its rich history, beautiful parks, and prestigious educational institutions.


















